Трехкомнатная квартира новое, Sveti Filip i Jakov

€ 283 250
3
78 m²
2
T
Да

Пометка

Объявление обновлено 04.03.2026
Описание

This description has been translated automatically and may not be accurate

ID: 5291

A luxurious and modern apartment for sale in NOVOGRADNJA with a view of the sea / a building with a total of 9 residential units, in a quiet location in Sv Filip i Jakov. The building consists of the ground floor, first and second floors, and roof terraces with a beautiful view of the sea, and the distance from the building to the sea and the beach is 600 m!!
The building is built of high quality and has an installed LIFT, it is built with concrete construction, thermal insulation is 10 cm styrofoam. The floors are covered with high-quality parquet, and the carpentry is made of three-layer PVC with IZO glass. electric blinds and mosquito nets. Floor heating will be implemented in the entire apartment. Air conditioning devices are monitored in the living room and in the bedrooms. The entrance door is fireproof and burglarproof.
 
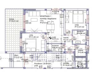
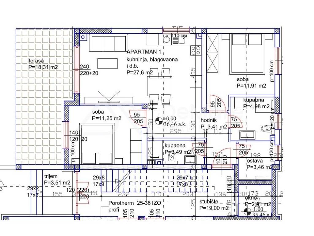
A1 - APARTMENT on the ground floor with a spacious gardenThe apartment is located on the ground floor and consists of:
-- Hallway / 3.41 m2,
-- Open space living room with kitchen and dining room / 27.60 m2,
-- Bedrooms / 11.25 m2,
-- Bedrooms / 11.91 m2
-- Bathrooms / 4.98 m2,
-- Bathrooms / 3.49 m2,
-- Storage room / 3.46 m2,
-- Covered terrace / 18.31 m2 which is connected to a spacious garden.
The interior living space occupies 66.10 m2.
The apartment has one outdoor parking space and a garden, and the total calculated useful value of all areas with accessories is 78.01 m2.
 
The seller is a legal entity, so the buyer DOES NOT PAY real estate tax.
Completion of works and move-in is planned by 07/2026. year.
For a tour of the property and all additional information, please contact us!
De Mare d.o.o.
Tel: +385 23 300 400
Mail: info@demare.hr
 
LOCATION:
This property is 600 m from the sea and the center of the settlement of Sv. Filip i Jakov, which has all the amenities needed for everyday life.Sv. Filip i Jakov is 25 km southeast of the city of Zadar and only 3 km northwest of the old town of Biograd na moru. The distance to Zmunik airport is 15 km.This small town offers you everything you need for everyday life and for an ideal vacation. Numerous restaurants, cafes and shops will make your stay in this place even more relaxing. Sveti Filip i Jakov is known for its beautiful pebble and sandy beaches, and is directly connected to the town of Biograd, which offers numerous additional amenities.
Если вы хотите узнать больше, вы можете поговорить с Daniel Mulahmetović.
Характеристики
Типология
Квартира
Договор
Продажа
Этаж
Нулевой этаж
Этажность здания
2
Лифт
Да
Площадь
78 m²
Помещения
3
Спальни
2
Ванные
2
Гараж, машиноместа
1 в общая парковка/гараж
Кондиционер
Автономное, холод/тепло
Вид
Море
Расстояние до моря
1 m
Другие характеристики
  • Внешние рамы из стеклопакета / ПВХ
  • Железная дверь
Деталь поверхности

Жилой фонд

Этаж
Нулевой этаж
Площадь
78,0 m²
Коэффициент
100%
Тип площади
Основная
Коммерческая площадь
78,0 m²
Информация о ценах
Цена
€ 283 250
Цена за м²
3 631 €/m²
Подробности о расходах
Плата за кондоминиум
Никаких кондоминиальных расходов
Энергоэффективность
  • Год постройки

    2026
  • Состояние

    Новое / На стадии строительства
  • Кондиционер

    Автономное, холод/тепло
  • Энергетическая сертификация

    Не классифицирована
Доп. опции

Свяжитесь с рекламодателем

Или