Отдельный дом на одну семью Jela, Centar, Osijek

€ 339 000
3
191 m²
Балкон
Терраса

Пометка

Объявление обновлено 09.03.2026
Описание

ID: EUROVILLA-105171

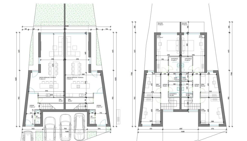
Osijek, ulica Jela, moderno koncipirana i kvalitetno izvedena kuća neto površine 170, 27 m² na 2 etaže (prizemlje, prvi i drugi kat s pristupom krovu), smještena u mirnoj i ugodnoj rezidencijalnoj zoni idealno za obiteljski život.Prizemlje se sastoji od ulaznog hodnika, toaleta, ostave te prostranog i svijetlog dnevnog boravka, kuhinje i blagovaonice otvorenog prostora, iz kojeg je omogućen izlaz u privatan i lijepo urediv vrt površine 43,62 m², koji pruža ugodan prostor za boravak na otvorenom.Na prvom katu nalazi se hodnik, master spavaća soba s garderobnim ormarom i vlastitom kupaonicom koja ima izlaz na balkon površine (6,73 m²), zatim još dvije spavaće sobe, dodatna kupaonica te vešeraj.Gornja etaža s pristupom krovnoj terasi sadrži dvije prostrane terase – natkrivenu površine 11,15 m² i nenatkrivenu 23,28 m², idealne za uživanje na otvorenom i uređenje atraktivnog lounge prostora.Kući također pripada i vanjsko natkriveno parkirno mjesto(23,11m²).*Opis objektaProjektiran je kao zidana konstrukcija od blok opeke s armirano-betonskim horizontalnim i vertikalnim serklažima.Ulaz s jugozapadne straneDebljina nosivog zida - 25 cm.Krov- izveden s betonom za pad, PVC hidroizolacijom, glazurom i završnom oblogom od keramičkih pločica.Podovi svih etaža obloženi su podnim keramičkim pločicama i višeslojnim parketom 1. klase.Fasada je kombinacija demit sustava i Alubond fasade (aluminijski kompozitni paneli) debljine 15 cm.Prozori i vanjska vrata izrađeni su od aluminijskih termo profila proizvođača FEAL, u antracit boji (RAL 7016), s troslojnim izo staklom.Vanjske prozorske klupčice su aluminijske, a unutarnje kamene.Sve konstrukcije projektirane su u skladu sa zahtjevima zvučne zaštite.Ugrađen je portafonski sustav s vanjskim pozivnim panelom, tipkama za poziv te tipkovnicom za otključavanje vrata (elektronska brava).Grijanje je izvedeno putem kondenzacijskog bojlera Vaillant te je predviđeno je podno grijanje u svim prostorijama / hlađenje putem Gree klima uređaja.Kupaonice i WC opremljeni su sanitarnim elementima visoke kvalitete, WC školjke su konzolne, s ugradbenim vodokotlićima.* Kuća je u završnoj fazi izgradnje.Planirani završetak objekta - 15.04.2026.Nekretnina se nalazi na odličnoj lokaciji, u mirnom i ugodnom obiteljskom okruženju, idealnom za kvalitetan i siguran svakodnevni život. U neposrednoj blizini dostupni su svi važni sadržaji poput trgovina, škole, vrtića, javnog prijevoza i ostale potrebne infrastrukture.... Više na eurovilla.hr, ID: 105171
Если вы хотите узнать больше, вы можете поговорить с Ines Bando.
Характеристики
Типология
Отдельный дом на одну семью
Договор
Продажа
Этаж
Нулевой этаж
Площадь
191 m²
Помещения
3
Спальни
3
Балкон
Да
Терраса
Да
Деталь поверхности

Жилой фонд

Этаж
Нулевой этаж
Площадь
191,5 m²
Коэффициент
100%
Тип площади
Основная
Коммерческая площадь
191,5 m²
Информация о ценах
Цена
€ 339 000
Цена за м²
1 775 €/m²
Планировка
Откройте для себя каждый уголок объекта недвижимости
+6
Доп. опции

Свяжитесь с рекламодателем

Или