Четырехкомнатная квартира Sukošan, Sukošan

€ 360 000
4
91 m²
2
T
Нет

Пометка

Объявление обновлено 11.03.2026
Описание

This description has been translated automatically and may not be accurate

ID: 137-201

Kaiser Immobilien presents: Modern three-bedroom apartment on the ground floor, 150 m from the sea – Sukošan, Zadar
In one of the most sought-after places on the Zadar Riviera, Sukošan, known for its crystal clear sea and nautical tourism, this functional and spacious apartment on the ground floor of a new building is located. The apartment is located in an excellent location, only 150 meters from the beach, offering the perfect balance of privacy and proximity to all amenities.
ABOUT THE APARTMENT:
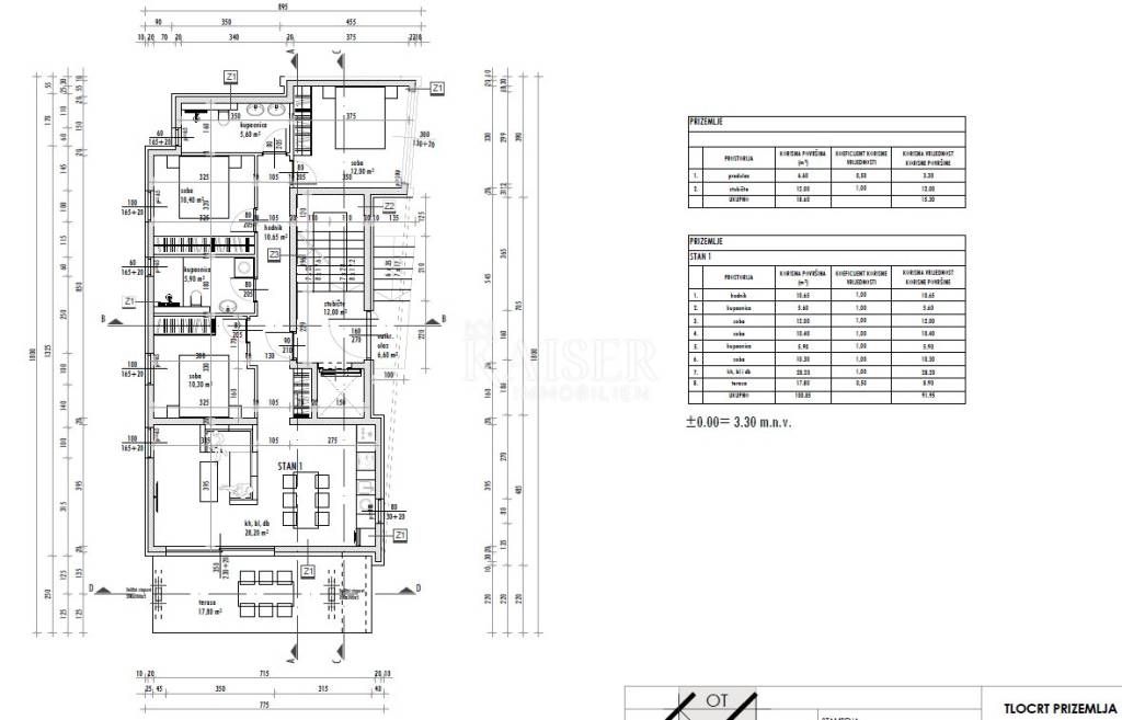
The apartment marked Stan 1 is located on the ground floor of the building, which ensures easy access and maximum utilization of space. The total usable area of the apartment is 100.85 m², while the net usable value with coefficients is 91.95 m².
DETAILED LAYOUT OF ROOMS:
The apartment is superbly designed with a clear separation of the living area from the sleeping area:
Living area (Open-space): A spacious space that combines the kitchen, dining area and living room with an area of 28.20 m². The living room opens out onto the terrace through a large glass wall.
Bedroom:
Master bedroom: 12.00 m²
Second bedroom: 10.40 m²
Third bedroom: 10.30 m²
Bathrooms: The apartment has two spacious bathrooms (5.60 m² and 5.90 m²), which is a great advantage for family life or tourist rental.
Hallway: A functional hallway of 10.65 m² that connects all rooms without losing usable space.
Terrace: A covered terrace of 17.80 m², ideal for enjoying summer evenings and dining outdoors.
LOCATION AND ADVANTAGES:
Proximity to the sea: Just 150 meters from the sea, the apartment allows easy access to the beach without the need for a car.
Ground floor: Ideal for families with children or people who avoid stairs.
Sukošan: A place with top-notch infrastructure, numerous restaurants, close to Zadar airport (10 min) and excellent highway connections.
This apartment represents an excellent opportunity for an investment in tourist rental with high return potential, but also as a luxurious home in a peaceful Mediterranean environment.

The buyer's agency fee is 3% + VAT and is paid in the case of purchasing a property, upon conclusion of the first legal act. Viewing the property is possible by prior arrangement.
If you want to take advantage of the opportunity and become the owner of this property in the heart of Dalmatia, contact us:

ID CODE: 137-201

Joško Bašić
Agent posredovanja u prometu nekretnina
Mob: +385915112693, +385995677888
E-mail: josko@kaiser-immobilien.hr
www.kaiser-immobilien.hr
Если вы хотите узнать больше, вы можете поговорить с Joško Bašić.
Характеристики
Типология
Квартира
Договор
Продажа
Этаж
Нулевой этаж
Этажность здания
2
Лифт
Нет
Площадь
91 m²
Помещения
4
Спальни
3
Ванные
2
Балкон
Нет
Терраса
Нет
Информация о ценах
Цена
€ 360 000
Цена за м²
3 956 €/m²
Энергоэффективность

Потребление энергии

A+

Планировка
Доп. опции

Свяжитесь с рекламодателем

Или