Участок под застройку Продажа

€ 350 000
2 038 m²

Пометка

Объявление обновлено 01.05.2026
Описание

ID: z399

Asfaltiran prilaz, Projektna dokumentacija, U mirnom djelu otoka, Vlasnički list.

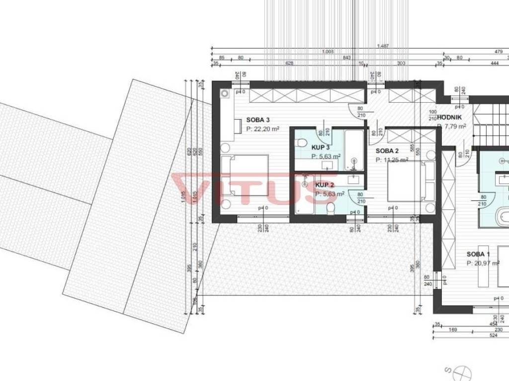
Atraktivno građevinsko zemljište površine 2038 m2, s projektnom dokumentacijom za izgradnju tri urbane mediteranske vile površine 227,44 m2, 328,83 m2 te 322,13 m2, s bazenima, garažom i okućnicom, nalazi se u okolici Vrbnika. U mirnoj, zelenoj oazi, udaljena od mora i centra Vrbnika 4000 m!
Характеристики
Договор
Продажа
Типология
Участок под застройку
Площадь
2 038 m²
Информация о ценах
Цена
€ 350 000
Цена за м²
172 €/m²
Откройте для себя каждый уголок объекта недвижимости
+9
Доп. опции

Свяжитесь с рекламодателем

Или