Трехкомнатная квартира Peroj, Vodnjan, Vodnjan

€ 276 880
3
76 m²
1
1
Нет
Терраса

Пометка

Объявление обновлено 14.03.2026
Описание

This description has been translated automatically and may not be accurate

ID: ID06160

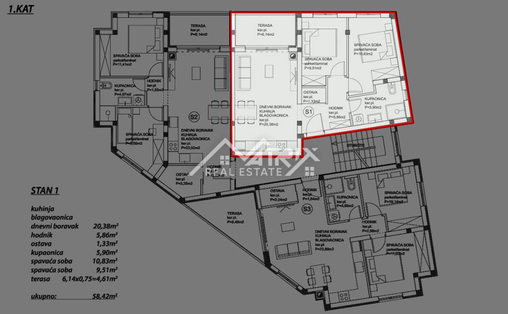
We offer an apartment on the 1st floor of a new development in the centre of Peroj, in a quiet area yet close to the sea and beaches. The apartment is located on the 1st floor of a building with a total of 2 floors, in a smaller building with only 6 apartments—ideal for a calmer and more private lifestyle. The apartment is thoughtfully designed for comfortable living and a functional layout, and it offers views of the sea and the Brijuni Islands. The apartment’s living area is 58.42 m², and it comes with a garage on the ground floor of the building measuring 18 m². Together, the apartment and garage total 76.42 m².
The layout includes an open-plan kitchen/dining/living area (20.38 m²), a hallway (5.86 m²), a storage room (1.33 m²), a bathroom (5.90 m²), and two bedrooms (10.83 m² and 9.51 m²). Added value comes from a covered terrace with a calculated area of 4.61 m² (6.14 x 0.75), ideal for relaxing.
Construction and finishing are to a higher standard with quality materials and built-in equipment: electric underfloor heating with thermostats in the living room and bathroom, an inverter AC unit for heating and cooling, first-class ceramic tiles, and high-quality laminate flooring in the bedrooms. Pre-sale buyers can choose from several tile and laminate options. The apartment includes security and fire-resistant DIERRE entrance doors, modern interior doors with concealed hinges, multi-chamber PVC windows with a 5-year warranty, and electric roller shutters. The bathroom is fitted with high-quality sanitary ware, including a concealed cistern. Completion is planned for summer 2026, with subdivision, occupancy permit, and title registration expected by the end of 2026—an excellent choice for living, holidays, or investment in Istria.

ID CODE: ID06160

Ivana Mohorović
Suradnik u procesu obuke
Mob: +385 95 370 44 46
Tel: +385 52 417 779
E-mail: ivana@matrixrealestate.hr
https://matrixrealestate.hr/

Matrix Real Estate
Voditelj ureda
Mob: +385 52 417 779
Tel: +385 52 417 779
E-mail: info@matrixrealestate.hr
https://matrixrealestate.hr/
Характеристики
Типология
Квартира
Договор
Продажа
Этаж
1 этаж
Этажность здания
2
Лифт
Нет
Площадь
76 m²
Помещения
3
Спальни
2
Ванные
1
Балкон
Нет
Терраса
Да
Гараж, машиноместа
1 в частный гараж/парковка, 1 в общая парковка/гараж
Кондиционер
Автономное, холод/тепло
Информация о ценах
Цена
€ 276 880
Цена за м²
3 643 €/m²
Энергоэффективность
  • Год постройки

    2025
  • Кондиционер

    Автономное, холод/тепло
  • Энергетическая сертификация

    Не классифицирована
Планировка
Откройте для себя каждый уголок объекта недвижимости
+19
Доп. опции

Свяжитесь с рекламодателем

Или