Отдельный дом на одну семью Labin, Labin

€ 480 000
5
195 m²
2
Нет
Терраса

Пометка

Объявление обновлено 20.03.2026
Описание

This description has been translated automatically and may not be accurate

ID: 5278

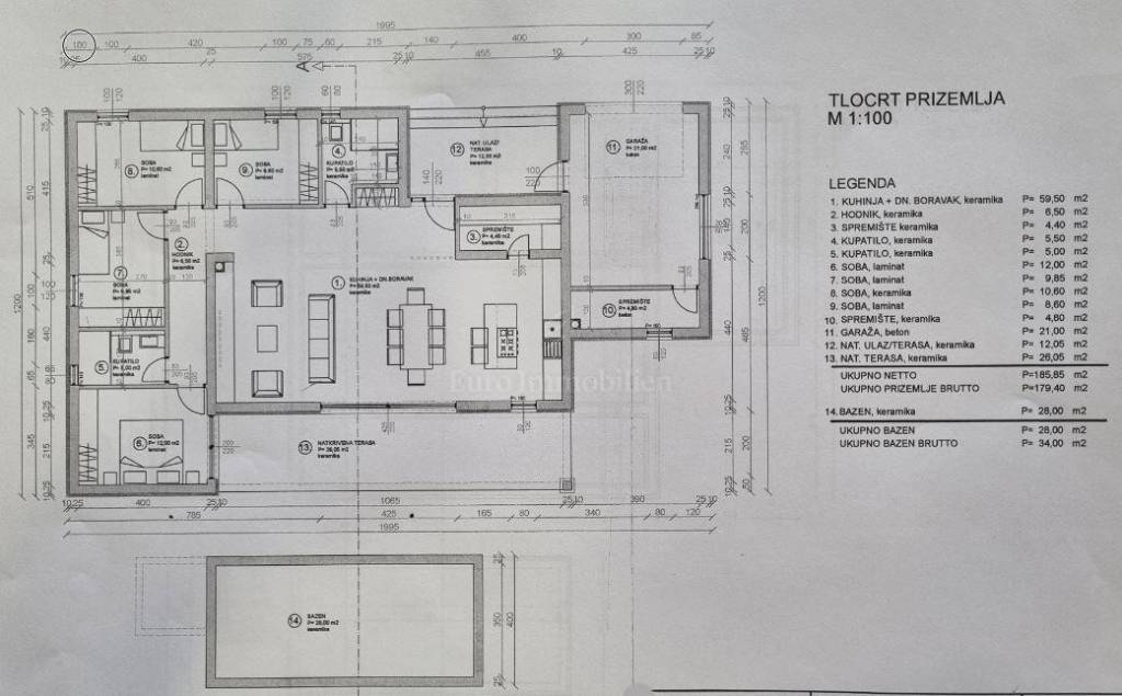
The construction of a modern one-story house on a plot of 1,400 m² in an extremely beautiful location has begun. It is located in a quiet, small village 5 km from Labin.

Neat project documentation, ownership is in order, building permit, paid communal costs and connections (electricity and water). The project plans the construction of a modern one-story house with a swimming pool with a total net living area of 195 m². The ground floor consists of: kitchen with dining room and living room, four bedrooms, two bathrooms, two storage rooms, garage and covered terrace. The price refers to a completely finished house without furniture.

The property is ideal for tourism or family life throughout the year.

Provizija agencije za kupca iznosi 3% + PDV i plaća se u slučaju kupovine nekretnine kod zaključenja kupoprodajnog Ugovora.

ID CODE: 5278

Euro Immobilien d.o.o.
Mob: 00385 (0)99 444 0500
Tel: +385 51 220 024
E-mail: info@euro-immobilien.hr
www.euro-immobilien.hr
Характеристики
Типология
Отдельный дом на одну семью
Договор
Продажа
Лифт
Нет
Площадь
195 m²
Помещения
5
Спальни
4
Ванные
2
Балкон
Нет
Терраса
Да
Гараж, машиноместа
1 в частный гараж/парковка, 1 в общая парковка/гараж
Информация о ценах
Цена
€ 480 000
Цена за м²
2 462 €/m²
Энергоэффективность
  • Год постройки

    2023
  • Энергетическая сертификация

    Не классифицирована
Планировка
Откройте для себя каждый уголок объекта недвижимости
+8
Доп. опции

Свяжитесь с рекламодателем

Или