Отдельный дом на одну семью Novigrad, Novigrad

€ 540 050
4
132 m²
2
Нет
Терраса

Пометка

Объявление обновлено 20.03.2026
Описание

This description has been translated automatically and may not be accurate

ID: IN-2365

A detached house with two separate apartments is for sale in a great location only 100 meters from the well-maintained beaches!

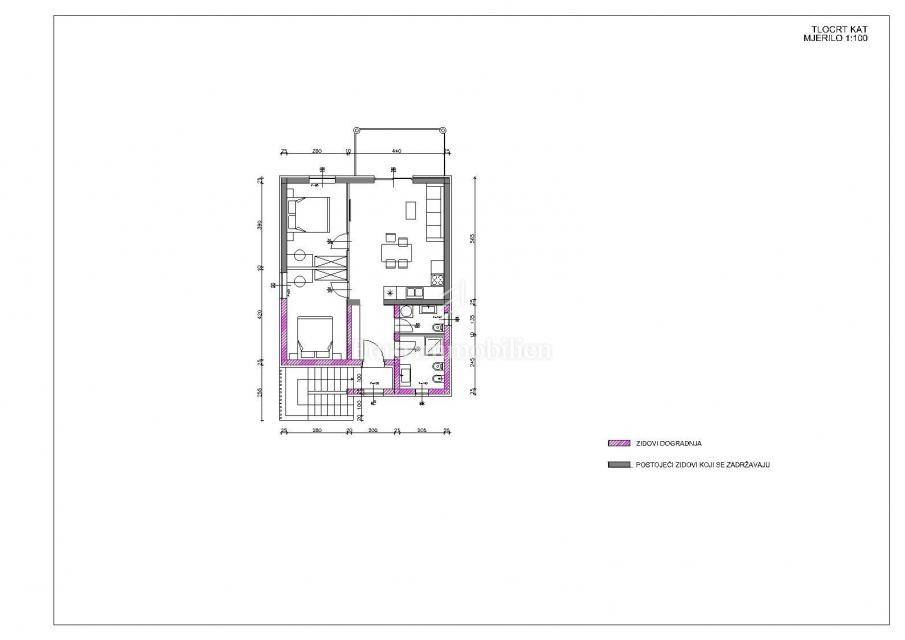
The house extends over the ground floor and first floor. On the ground floor there is an apartment of 59.61 m2 with a terrace, consisting of a hallway, two bedrooms, a bathroom, a living room with a dining room and a kitchen. From the living room there is access to a spacious covered terrace and garden. The external stairs lead to the apartment on the first floor of the same square footage and layout. From the first floor there is a beautiful view of the sea from the bedrooms, the living room and the balcony. The apartments need minor renovation, but they are functional and are rented for tourist purposes. Heating/cooling is via air conditioning. The house has 369 m2 of garden with a barbecue and parking.

All necessary facilities are nearby. The beaches are only a few minutes' easy walk away. The property is an ideal choice for those who want a house by the sea!!!

Note: there is a possibility of buying the neighbouring house; purchase of both properties with discount.

Provizija agencije za kupca iznosi 3% + PDV i plaća se u slučaju kupovine nekretnine kod zaključenja kupoprodajnog Ugovora.

ID CODE: IN-2365

Euro Immobilien d.o.o.
Mob: 00385 (0)99 444 0500
Tel: +385 51 220 024
E-mail: info@euro-immobilien.hr
www.euro-immobilien.hr
Характеристики
Типология
Отдельный дом на одну семью
Договор
Продажа
Этаж
Нулевой этаж
Лифт
Нет
Площадь
132 m²
Помещения
4
Спальни
4
Ванные
2
Балкон
Нет
Терраса
Да
Гараж, машиноместа
1 в общая парковка/гараж
Отопление
Автономное, воздушное
Кондиционер
Автономное, холод/тепло
Информация о ценах
Цена
€ 540 050
Цена за м²
4 091 €/m²
Энергоэффективность
  • Год постройки

    1970
  • Отопление

    Автономное, воздушное
  • Кондиционер

    Автономное, холод/тепло
  • Энергетическая сертификация

    Не классифицирована
Откройте для себя каждый уголок объекта недвижимости
+34
Доп. опции

Свяжитесь с рекламодателем

Или