Участок под застройку Продажа

€ 295 000
568 m²

Пометка

Объявление обновлено 20.03.2026
Описание

ID: 7369

Građevinsko zemljište u Njivicama, otok Krk.

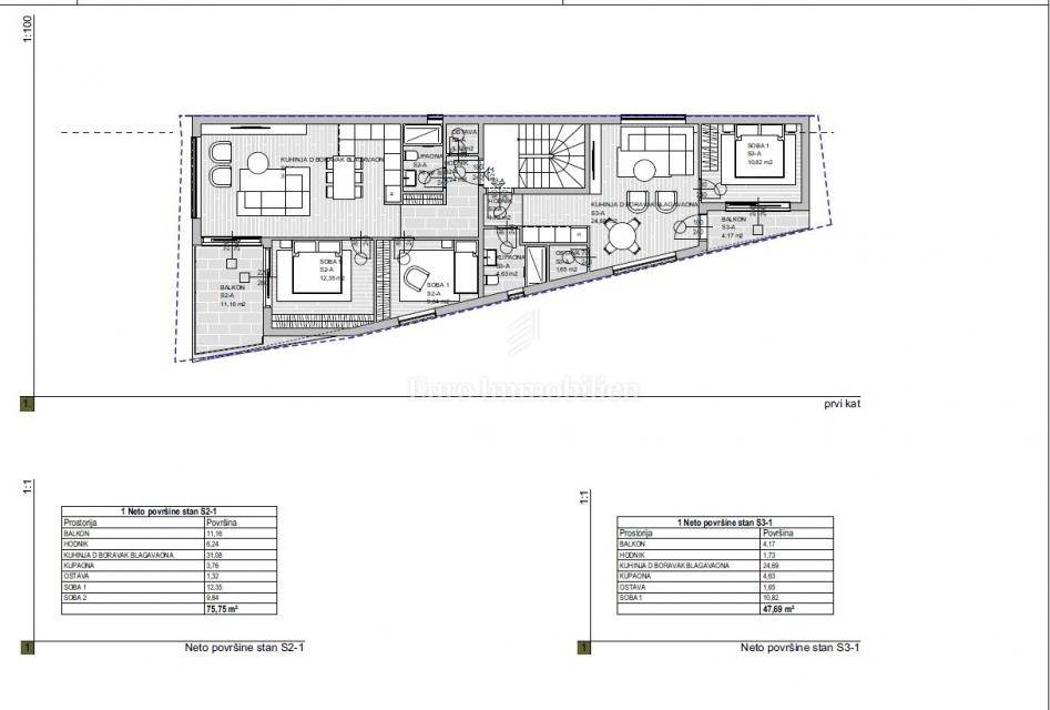
Zemljište se prodaje s kompletnom projektnom dokumentacijom za izgradnju stambene građevine sa četiri stambene jedinice, katnosti prizemlje i dva kata, sa krovnom terasom. Predana je dokumentacija za građevinsku dozvolu. Infrastruktura (struja, voda, internet) - na 20 m od terena.
Lijepa lokacija, udaljena oko 500 metara plaže. S gornjih katova se očekuje pogled na more.
Za sve informacije i dogovor razgledavanja dostupni smo na broju 0994440660 ili u poslovnici Malinska na adresi Dubašljanska 111.

Za sve informacije i dogovor razgledavanja dostupni smo na broju 0994440660 ili u poslovnici Malinska na adresi Dubašljanska 111.

Provizija agencije za kupca iznosi 3% + PDV i plaća se u slučaju kupovine nekretnine kod zaključenja kupoprodajnog Ugovora.

ID CODE: 7369

Euro Immobilien d.o.o.
Mob: 00385 (0)99 444 0660
Tel: +385 51 220 024
E-mail: info@euro-immobilien.hr
www.euro-immobilien.hr
Характеристики
Договор
Продажа
Типология
Участок под застройку
Площадь
568 m²
Информация о ценах
Цена
€ 295 000
Цена за м²
519 €/m²
Откройте для себя каждый уголок объекта недвижимости
+4
Доп. опции

Свяжитесь с рекламодателем

Или