Отдельный дом на одну семью Primošten, Primošten

€ 2 000 000
5
310 m²
3+
Нет

Пометка

Объявление обновлено 30.03.2026
Описание

This description has been translated automatically and may not be accurate

ID: 751

PRIMOŠTEN – EXCLUSIVE VILLA WITH PANORAMIC SEA VIEW & OLD TOWN VISTA

Situated in a prestigious residential area of Primošten, this exceptional villa offers breathtaking panoramic views of the Adriatic Sea, the charming old town of Primošten, and the surrounding islands, all embraced by lush Mediterranean greenery.

Set on a 611 m² plot, with a total living area of approx. 310 m², the property is thoughtfully designed across two levels, combining contemporary architecture with ultimate comfort and privacy.

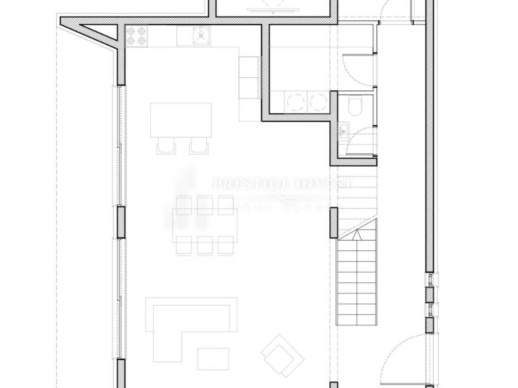
LAYOUT & INTERIOR
GROUND FLOOR – open concept living:
spacious living room with floor-to-ceiling glass walls and stunning sea views
dining area
fully equipped designer kitchen by Scavolini
2 bedrooms with en-suite bathrooms and walk-in wardrobes
guest toilet
storage / laundry room

FIRST FLOOR:
luxurious master bedroom with en-suite bathroom and walk-in wardrobe
direct access to a private spa area (sauna & jacuzzi)
additional bedroom with en-suite bathroom and wardrobe

ARCHITECTURAL HIGHLIGHTS
impressive 7-meter-high glass atrium entrance
seamless indoor-outdoor connection
abundant natural light and open views

OUTDOOR AREA
hydromassage swimming pool (35 m²) with sun deck
outdoor lounge area with fireplace
modern summer kitchen
beautifully landscaped cascading garden with palm trees
private parking for 4 vehicles

SURFACE SPECIFICATION
GROUND FLOOR:
living room & kitchen: 51.70 m²
bedroom: 15.33 m²
bathroom: 5.29 m²
storage: 5.73 m²
hallway: 20.24 m²
WC: 1.56 m²
bathroom: 5.35 m²
bedroom: 15.03 m²
covered terrace: 14.50 m² (accounted 7.25 m²)
Total ground floor (net): 127.48 m²

FIRST FLOOR:
bedroom: 15.05 m²
bathroom: 5.29 m²
wardrobe: 4.24 m²
hallway: 20.22 m²
bedroom: 14.81 m²
bathroom: 5.35 m²
staircase: 5.21 m²

Total first floor (net): 70.17 m²
TOTAL NET AREA: 197.65 m²
TOTAL BUILDING VOLUME: 889.47 m³
POOL VOLUME: 48.55 m³

This property represents a perfect blend of luxury, modern architecture, and a prime location, making it ideal as a private residence or a high-end investment for luxury rentals.

Phone: +385 95 73 55 171
E-mail: info@prestigeinvest.hr

ID CODE: 751

Ivana Ančić
Voditelj ureda
Mob: +385 95 73 55 171
Tel: +385 95 588 8082
E-mail: info@prestigeinvest.hr
www.prestigeinvest.hr
Характеристики
Типология
Отдельный дом на одну семью
Договор
Продажа
Этажность здания
2
Лифт
Нет
Площадь
310 m²
Помещения
5
Спальни
4
Ванные
3+
Балкон
Нет
Терраса
Нет
Гараж, машиноместа
4 в общая парковка/гараж
Отопление
Автономное, воздушное
Кондиционер
Автономное, холод/тепло
Другие характеристики
  • Сигнализация
Информация о ценах
Цена
€ 2 000 000
Цена за м²
6 452 €/m²
Энергоэффективность

Потребление энергии

A+

Откройте для себя каждый уголок объекта недвижимости
+49
Доп. опции

Свяжитесь с рекламодателем

Или