Отдельный дом на несколько семей Krk, Centar, Krk

€ 665 000
5
157 m²
3+
Нет
Терраса

Пометка

Объявление обновлено 18.04.2026
Описание

This description has been translated automatically and may not be accurate

ID: 1634

Located in a peaceful area near Krk, this elegant and contemporary semi-detached house is an ideal choice for those seeking a luxurious home in a new development. Spanning 157 m² across two floors, it offers a perfect combination of modern design, functionality, and comfort, while being close to all necessary amenities.

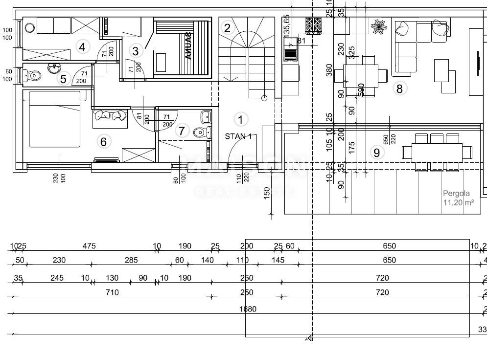
The ground floor features a spacious hallway leading to a sauna with a shower, as well as a laundry room and a separate toilet. Additionally, there is a bedroom with an en-suite bathroom, providing extra privacy for guests or family members.

The central part of the ground floor consists of an airy open-plan space combining the kitchen, dining area, and living room, with direct access to a covered terrace. The terrace, equipped with a pergola, leads to a beautifully designed outdoor area featuring a heated 40 m² swimming pool and a sun deck, perfect for relaxation all year round.

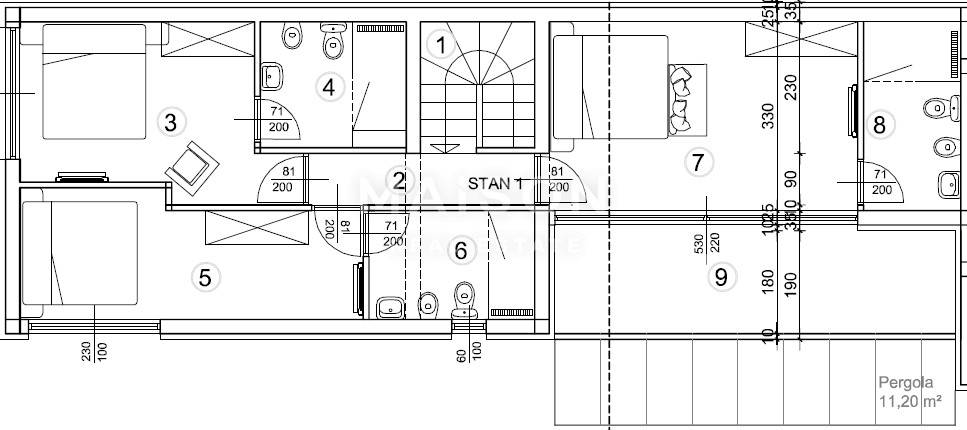
Upstairs, there are three spacious bedrooms, each with its own bathroom. The master bedroom has access to a large terrace with a pergola, offering stunning sea views.

The landscaped yard includes a heated pool, sunbathing area, and two parking spaces. The house is fitted with high-quality PVC joinery with triple glazing, aluminum shutters, and mosquito screens, ensuring excellent insulation and energy efficiency. Underfloor heating, a heat pump for heating and hot water, and air conditioning in all rooms provide year-round comfort.

For added security, the property features an alarm system and video surveillance. The use of premium ceramics throughout the interior enhances its modern and luxurious aesthetic.

This attractive property presents an excellent opportunity for those seeking a contemporary home near the sea, with luxury amenities and top-quality construction.

The property is subject to VAT, and the buyer does not pay real estate transfer tax.

Contact us for more information or to arrange a viewing.

ID CODE: 1634

Barbara Popović
Agent s licencom
Mob: +385 91 925 9816
Tel: +385 51 640 777
E-mail: barbara@maison-nekretnine.com
www.maison-nekretnine.com

Nika Galović
Agent s licencom
Mob: +385 98 191 9398
Tel: +385 51 640 777
E-mail: nika@maison-nekretnine.com
www.maison-nekretnine.com
Характеристики
Типология
Отдельный дом на несколько семей
Договор
Продажа
Этажность здания
1
Лифт
Нет
Площадь
157 m²
Помещения
5
Спальни
4
Ванные
3+
Балкон
Нет
Терраса
Да
Гараж, машиноместа
2 в общая парковка/гараж
Отопление
Автономное, воздушное
Кондиционер
Автономное, холод/тепло
Другие характеристики
  • Сигнализация
Информация о ценах
Цена
€ 665 000
Цена за м²
4 236 €/m²
Энергоэффективность
  • Отопление

    Автономное, воздушное
  • Кондиционер

    Автономное, холод/тепло
  • Энергетическая сертификация

    Не классифицирована
Планировка
Откройте для себя каждый уголок объекта недвижимости
+6
Доп. опции

Свяжитесь с рекламодателем

Или