Отдельный дом на одну семью 160 m², новая, Kukci - Nova Vas, Пореч

€ 550 000
3
160 m²
3+
Погреб

Пометка

Объявление обновлено 29.05.2026
Описание

This description has been translated automatically and may not be accurate

ID: 1908_0318

Istria, Porec

In the immediate vicinity of the city of Poreč and the sea, this excellent semi-detached house with a pool of 160m2 is for sale.

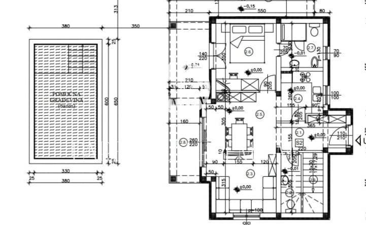
The house is divided into 2 floors.
The ground floor consists of an entrance hall, a bedroom with its own bathroom that leads to the sundeck and pool, a kitchen with a dining room and a spacious living room with large glass walls that allow a lot of light. On this floor we have an additional toilet with a laundry room.
We climb the stairs to the first floor, where there are 2 more bedrooms with their own bathrooms, from which there is access to a common terrace with a view of the sea.

There is a swimming pool in the beautifully landscaped garden.
There is a large parking lot in the driveway of the house intended for several vehicles.

The house is fully air-conditioned and is sold furnished and equipped with all necessary appliances.

Due to its location and contents, this property is an ideal investment for family life or tourist rental with existing categorization.

Viewing the property is possible with a signed mediation agreement, which is the basis for further action in connection with the sale and commission in accordance with the Act on mediation in real estate transactions. In the case of sales, the agency commission amounts to 3% + VAT and is charged when concluding the pre-contract/sales contract.
Если вы хотите узнать больше, вы можете поговорить с Sanel Budimilić.
Характеристики
Типология
Отдельный дом на одну семью
Договор
Продажа
Этаж
1
Этажность здания
1
Площадь
160 m² | коммерческая 660 m²
Помещения
3
Спальни
3
Ванные
3+
Меблировано
Нет
Гараж, машиноместа
1 в общая парковка/гараж
Отопление
Автономное, блок питания
Кондиционер
Холод/тепло
Другие характеристики
  • Бассейн
Деталь поверхности

Жилой фонд

Этаж
1
Площадь
160,0 m²
Коэффициент
100%
Тип площади
Основная
Коммерческая площадь
160,0 m²

Участок

Этаж
Нулевой этаж
Площадь
500,0 m²
Коэффициент
100%
Тип площади
Дополнительная
Коммерческая площадь
500,0 m²
Информация о ценах
Цена
€ 550 000
Цена за м²
833 €/m²
Энергоэффективность
  • Год постройки

    2024
  • Состояние

    Новое / На стадии строительства
  • Отопление

    Автономное, блок питания
  • Кондиционер

    Холод/тепло
Откройте для себя каждый уголок объекта недвижимости
+34
Доп. опции

Свяжитесь с рекламодателем

Или