Трехкомнатная квартира новое, нулевой этаж, Bakar

€ 244 000
3
78 m²
1
1
Терраса

Пометка

Объявление обновлено 29.04.2026
Описание

This description has been translated automatically and may not be accurate

ID: 46888

HRELJIN, BAKAR - 2-bedroom + living room apartment with a garden, terrace and sea view - parking and storage room

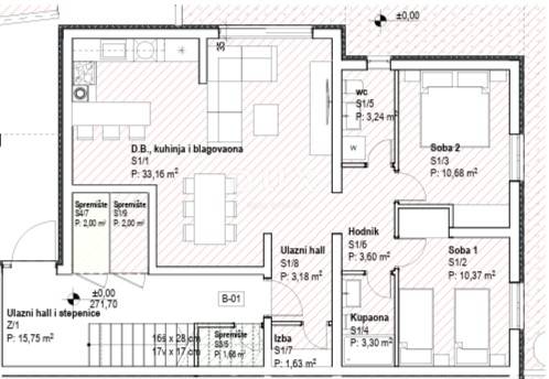
A modern apartment for sale located on the ground floor of a new building, with a total net usable area of 78 m, with an accompanying garden, terrace, parking space and storage room. The apartment is designed as a 2-bedroom + living room, with a spacious living room, kitchen and dining room in an open space design, two comfortable bedrooms, bathroom, additional toilet and practical storage spaces.

A special advantage of this property is a private garden and terrace with a sea view, ideal for relaxing and spending time outdoors. The location offers peace and privacy, and at the same time is close to the center of the village and all necessary amenities.

The apartment is built with quality materials and equipped with top-quality equipment: Porotherm Profi S block, 10 cm facade, Alu-Ben aluminum joinery, Dierre security doors, Braga interior doors, Kronotex Mammut 12 mm laminate, Geberit sanitary ware and high-quality ceramics. Heating and cooling are provided by a Hisense split system.

The property is subject to VAT, and the planned move-in date is summer 2026. This is the last available apartment in the project - an ideal opportunity to purchase a quality property with a garden and sea view.

***
Dear clients, the agency commission is charged in accordance with the General Terms and Conditions:
www.dux-nekretnine.hr/opci-uvjeti-poslovanja!

ID CODE: 46888

DUX Rijeka
Mob: +385 99 879 6808
Tel: +385 91 480 8808
E-mail: info@dux-nekretnine.hr
www.dux-nekretnine.hr
Характеристики
Типология
Квартира
Договор
Продажа
Этаж
1
Площадь
78 m² | коммерческая 158 m²
Помещения
3
Спальни
2
Ванные
1
Балкон
Нет
Терраса
Да
Кондиционер
Автономное, холод/тепло
Деталь поверхности

Жилой фонд

Этаж
1
Площадь
78,0 m²
Коэффициент
100%
Тип площади
Основная
Коммерческая площадь
78,0 m²

Участок

Этаж
Нулевой этаж
Площадь
80,0 m²
Коэффициент
100%
Тип площади
Дополнительная
Коммерческая площадь
80,0 m²
Информация о ценах
Цена
€ 244 000
Цена за м²
1 544 €/m²
Энергоэффективность

Потребление энергии

A

Откройте для себя каждый уголок объекта недвижимости
+19
Доп. опции

Свяжитесь с рекламодателем

Или