Квартира новое, нулевой этаж, Petrova - Voćarska, Загреб

€ 790 000
5
155 m²
2
T
Да

Пометка

Объявление обновлено 16.04.2026
Описание

ID: I28230

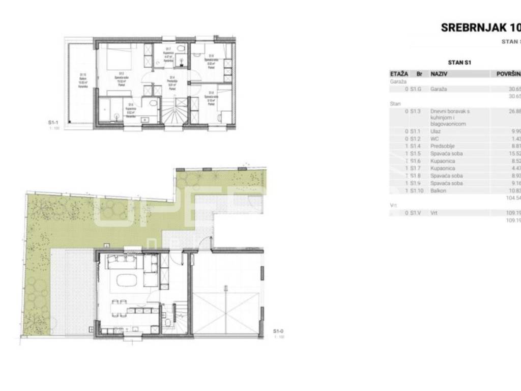
Prodaja, Stan, Novogradnja, Srebrnjak, 125m2, 4s.
Vrhunska luksuzna zgrada s ukupno 4 stana.

Luksuzan dvoetažan četverosoban stan zatvorene površine 105m2, vrt 109m2, garaža 30,65 m2. Ukupno obračunski NKP 125m2. Sastoji se od predsoblja, dnevnog boravka s kuhinjom i blagovaonicom otvorenog tlocrta s izlazom na terasu i vrt, gostinjskog wc-a na gornjoj etaži, predsoblja, master sobe s garderobom, kupaonicom i izlazom na balkon, dvije spavaće sobe i kupaonice.

Stan odlikuje najviši stupanj opreme i najsuvremenije tehnologije u pogledu instalacija i upravljanja istima, dok energetska učinkovitost zadovoljava najviše standarde. Visoko kvalitetna oprema: rekuperator zraka, dizalice topline (Daikin), alumini stolarija (Schuco), troslojno staklo, topla veza lift garaža stan, protuprovalna ulazna vrata, hrastov parket I klase, vrhunska keramika i sanitarna oprema.

Useljenje ljeto 2025. godine.

Sve ostale informacije na upit.
Характеристики
Типология
Квартира
Договор
Продажа
Этаж
Нулевой этаж
Лифт
Да
Площадь
155 m²
Помещения
5
Спальни
4
Ванные
2
Меблировано
Нет
Гараж, машиноместа
1 в общая парковка/гараж
Отопление
Автономное, блок питания
Кондиционер
Холод/тепло
Информация о ценах
Цена
€ 790 000
Цена за м²
5 097 €/m²
Энергоэффективность
  • Год постройки

    2024
  • Состояние

    Новое / На стадии строительства
  • Отопление

    Автономное, блок питания
  • Кондиционер

    Холод/тепло
Откройте для себя каждый уголок объекта недвижимости
+11
Доп. опции

Свяжитесь с рекламодателем

Или