Отдельный дом на одну семью Krk, Centar, Krk

€ 720 000
5
175 m²
2
Нет
Терраса

Пометка

Объявление обновлено 21.04.2026
Описание

This description has been translated automatically and may not be accurate

ID: 660

In a idyllic setting near the town of Krk, there is a detached house in Mediterranean style, surrounded by nature. The house has a total living area of 175 square meters and, with its layout and capacity, provides comfortable accommodation for up to ten people, making it suitable for permanent living, family vacations, or an already well-established tourist rental business.

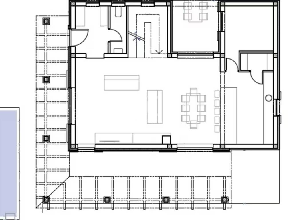
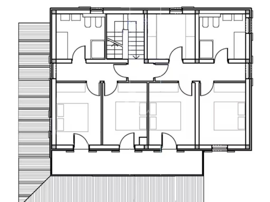
The interior is designed with an emphasis on comfort and functionality. It consists of four bedrooms on the first floor, two of which have their own en-suite bathrooms equipped with a shower and a bathtub. On the ground floor, there is a living room with an open-space kitchen of approximately 40 square meters, offering ample space for relaxation and socializing, while a wood-burning stove adds warmth and atmosphere. The rooms are generously sized, and PVC joinery is fitted with mosquito nets and shutters. There is also a guest toilet, storage room, and boiler room available. The house is additionally equipped with underfloor heating and a heat pump, ensuring a comfortable stay throughout the year, as well as a water heating system.

A special value of the property is the landscaped and fully fenced garden with a total area of 455 square meters, carefully arranged with Mediterranean plants and a lawn. The outdoor area features a heated swimming pool measuring approximately 5.8 x 4.10 meters, equipped with counter-current swimming and a heat pump. In addition, there are three covered parking spaces in the shade and a barbecue area for social gatherings.

The house is located just two kilometers from the sea, allowing quick and easy access to the coast while maintaining peace and privacy away from tourist crowds. Due to its location, equipment, and established rental business, this property represents an excellent investment opportunity as well as a perfect choice for year-round living or vacation.

ID CODE: 660

Jelena Andrić
Mob: +385 99 3993 088
Tel: +385 51 678 696
E-mail: info@alfaelmas.com
www.alfaelmas.com
Характеристики
Типология
Отдельный дом на одну семью
Договор
Продажа
Этажность здания
1
Лифт
Нет
Площадь
175 m²
Помещения
5
Спальни
4
Ванные
2
Балкон
Нет
Терраса
Да
Гараж, машиноместа
4 в общая парковка/гараж
Отопление
Автономное, воздушное
Кондиционер
Автономное, холод/тепло
Информация о ценах
Цена
€ 720 000
Цена за м²
4 114 €/m²
Энергоэффективность

Потребление энергии

A

Откройте для себя каждый уголок объекта недвижимости
+23
Доп. опции

Свяжитесь с рекламодателем

Или