Трехкомнатная квартира новое, нулевой этаж, Sveti Filip i Jakov

€ 388 000
3
97 m²
1
T
Да

Пометка

Объявление обновлено 29.04.2026
Описание

This description has been translated automatically and may not be accurate

ID: I35492

New Construction Two-Bedroom Apartment with Garden, 90 m2, Ground Floor, Sveti Filip i Jakov, Zadar

We highlight a two-bedroom apartment on the ground floor of a building with a total of six apartments. The building is currently in the rough construction phase, with planned completion by the end of 2026.

An excellent opportunity for solving housing needs or purchasing a property for vacation, especially due to the possibility of customization during construction.

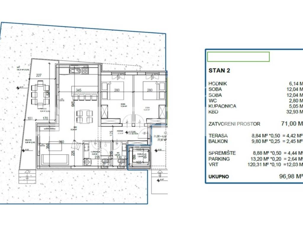
The enclosed part of the apartment has an area of 71 m2 and consists of two bedrooms, each 12 m2, a bathroom, a separate toilet, a hallway, and a common living room and kitchen with dining area of 33 m2. The living area extends to a covered terrace of 9 m2 and a balcony of 10 m2, both offering a sea view. The terrace is surrounded by a garden of 120 m2. The apartment includes a storage room and one parking space in the building's yard.

Each room will be air-conditioned, while underfloor heating is planned for the bathrooms. During the construction phase, the investor offers the option of installing underfloor heating throughout the apartment for an additional fee. There is also the possibility to choose floor and wall coverings according to the buyers' preferences.

The building has an elevator. The entrance doors are anti-burglary and fire-resistant, while the interior doors are of modern design with concealed fittings. High-quality PVC joinery is planned to be installed. The facade of the building will be clad with travertine slabs.

The investor is a legal entity, so the buyer does not pay property transfer tax.

Viewing is possible every day of the week with prior notice.

Sveti Filip i Jakov is a peaceful Dalmatian place known for its well-maintained beaches, clean sea, and developed tourist offer. In close proximity are Zadar and Biograd na Moru, which further contributes to excellent transport connectivity and accessibility to all amenities. Purchasing property in Sveti Filip i Jakov represents an excellent choice for both private use and a secure investment with good potential for tourist rental.
Характеристики
Типология
Квартира
Договор
Продажа
Этаж
Нулевой этаж
Лифт
Да
Площадь
97 m²
Помещения
3
Спальни
2
Ванные
1
Меблировано
Нет
Гараж, машиноместа
1 в общая парковка/гараж
Отопление
Автономное, блок питания
Кондиционер
Холод/тепло
Информация о ценах
Цена
€ 388 000
Цена за м²
4 000 €/m²
Энергоэффективность
  • Год постройки

    2026
  • Состояние

    Новое / На стадии строительства
  • Отопление

    Автономное, блок питания
  • Кондиционер

    Холод/тепло
Откройте для себя каждый уголок объекта недвижимости
+4
Доп. опции

Свяжитесь с рекламодателем

Или