Отдельный дом на одну семью 113 m², новая, Varaždin

€ 341 730
4
113 m²
1
Да
Балкон

Пометка

Объявление обновлено 25.04.2026
Описание

This description has been translated automatically and may not be accurate

ID: 47241

VARAŽDIN - Quiet location and modern design - terraced house with private garden

We present to you a modernly designed new building located in a quiet and pleasant location in Varaždin, ideal for family life. In the immediate vicinity there are all the facilities necessary for quality and practical everyday life, including schools, kindergartens, shops and other important infrastructure.

The property is located within a modern project of six terraced houses, and each unit has a private garden of approximately 92100 m (calculated at a price of 150/m), an outdoor storage room and two parking spaces in front of the building.

The house with a total net living area of 113.91 m is spread over two floors - ground floor and first floor - and was designed with an emphasis on functionality, comfort and maximum use of space. Thanks to large glass surfaces, the interior is abundant with natural light throughout the day.

The construction is being carried out on a turnkey basis, using quality materials and modern technical solutions, while the completion of works and move-in is scheduled for the end of 2026. The property meets the standards of low-energy construction, which ensures high energy efficiency and low overhead costs.

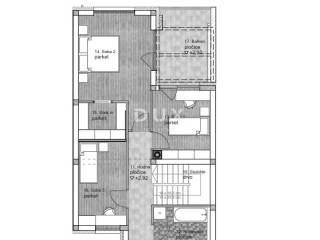
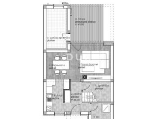
Layout:

GROUND FLOOR:
Covered entrance, entrance hall, guest toilet, storage under the stairs and a spacious open-space living room connected to the kitchen and dining room. The living area provides access to a covered terrace and private garden, creating a pleasant space for relaxation and socializing. The property also includes an outdoor storage room.

FIRST FLOOR:
The staircase and hallway lead to three bedrooms and a bathroom. The master bedroom has its own walk-in wardrobe, while two additional rooms provide ideal space for children's rooms, a study or a guest room. There is also a balcony on the first floor.

Technical characteristics and equipment:

Latest generation heat pump
Air conditioners on both floors
White PVC joinery with triple-layered insulated glass and roller shutters
Anti-burglary entrance door
Excellent thermal and sound insulation
Flooring in a combination of high-quality ceramics and parquet
Indoor and outdoor storage

The project is characterized by modern architecture, quality workmanship and carefully designed floor plans that provide maximum functionality and comfort of living.

This property represents an excellent combination of modern design, energy efficiency and quality construction and is an ideal opportunity for families looking for a peaceful and quality home in a pleasant environment.

For more information and to arrange a viewing, please feel free to contact us with full confidence.

Dear clients, the agency commission is charged in accordance with the General Terms and Conditions.
www.dux-nekretnine.hr/opci-uvjeti-poslovanja

ID CODE: 47241

Anita Velić Fabijanić
Agent s licencom
Mob: +385 99 505 0174
Tel: +385 91 480 8808
E-mail: anita@dux-nekretnine.hr
www.dux-nekretnine.hr
Если вы хотите узнать больше, вы можете поговорить с Anita Velić Fabijanić.
Характеристики
Типология
Отдельный дом на одну семью
Договор
Продажа
Этаж
1
Лифт
Да
Площадь
113 m² | коммерческая 205 m²
Помещения
4
Спальни
3
Ванные
1
Балкон
Да
Терраса
Нет
Кондиционер
Автономное, холод/тепло
Деталь поверхности

Жилой фонд

Этаж
1
Площадь
113,0 m²
Коэффициент
100%
Тип площади
Основная
Коммерческая площадь
113,0 m²

Участок

Этаж
Нулевой этаж
Площадь
92,0 m²
Коэффициент
100%
Тип площади
Дополнительная
Коммерческая площадь
92,0 m²
Информация о ценах
Цена
€ 341 730
Цена за м²
1 667 €/m²
Энергоэффективность
  • Год постройки

    2026
  • Состояние

    Новое / На стадии строительства
  • Кондиционер

    Автономное, холод/тепло
  • Энергетическая сертификация

    Не подлежащий
Откройте для себя каждый уголок объекта недвижимости
+2
Доп. опции

Свяжитесь с рекламодателем

Или