Четырехкомнатная квартира Tar, Tar-Vabriga, Tar-Vabriga

€ 579 125
4
157 m²
3
T
Нет
Балкон
Терраса

Пометка

Объявление обновлено 27.04.2026
Описание

This description has been translated automatically and may not be accurate

ID: 3965

Luxurious two-story S2 apartment in a new building with a private pool and a beautiful sea view.
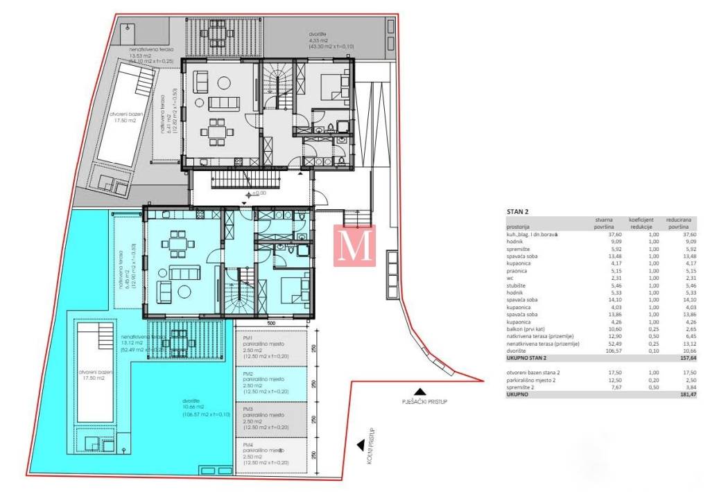
Total area of 157.64 m2, spread over two floors as it follows:

ground floor: entrance hall, living room with dining room and kitchen, bedroom, bathroom, utility room, toilet
1st floor: 2 bedrooms, 2 bathrooms, balcony

The living room leads to a covered terrace (12.90 m2) with a sun deck (52.49 m2) and a swimming pool (17.50 m2).
The apartment is equipped with ALU-PVC carpentry, mosquito nets and electric blinds. All rooms have air conditioners with inverters, underfloor heating is installed in the living room and all bathrooms.
Top-quality materials were used - first-class ceramics in the living room, bathrooms and hallways, three-layer oak parquet in the bedrooms, solid oak paneling on the staircase.
The apartment comes with an outdoor parking space (12.50 m2) and a storage room (7.67 m2) in the basement of the building.
Top real estate in a great location, ideal for vacation and as an investment - recommended by the agency!
Real estate in the phase of obtaining a use permit.
More info on personal request.

ID CODE: 3965

METROPOLA agencija za nekretnine
Preradovićeva 20, 10000 Zagreb, Hrvatska
T + 385 (1) 2421 977
E-mail: info@metropola.hr
www.metropola.hr
Характеристики
Типология
Квартира
Договор
Продажа
Этаж
Нулевой этаж
Этажность здания
3
Лифт
Нет
Площадь
157 m²
Помещения
4
Спальни
3
Ванные
3
Балкон
Да
Терраса
Да
Кондиционер
Автономное, холод/тепло
Информация о ценах
Цена
€ 579 125
Цена за м²
3 689 €/m²
Энергоэффективность
  • Год постройки

    2024
  • Кондиционер

    Автономное, холод/тепло
  • Энергетическая сертификация

    Не классифицирована
Планировка
Откройте для себя каждый уголок объекта недвижимости
+8
Доп. опции

Свяжитесь с рекламодателем

Или