Трехкомнатная квартира Vodice, Vodice

€ 248 000
3
68 m²
1
T
Нет
Терраса

Пометка

Объявление обновлено 27.04.2026
Описание

This description has been translated automatically and may not be accurate

ID: 901-A2

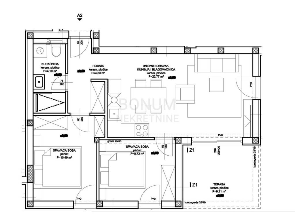
For sale is a two-bedroom apartment on the ground floor of a modern building in Vodice. The total usable area is 68.63 m², of which 51 m2 is residential. The apartment consists of a hallway, two bedrooms, a bathroom, a living room connected to the kitchen and dining room, and a terrace with access to the 30 m² yard. The apartment also has one parking space.

The building is being built to high construction standards and consists of eight residential units spread over four floors. It is equipped with modern materials and systems: thermal facade, security doors, electric roller shutters with mosquito nets, underfloor heating in the bathrooms, modern sanitary facilities, air conditioning in all rooms, and glass fences on the terraces. The apartments on the ground floor have gardens, and the completion of construction and move-in are planned for spring 2026.

The apartment is located in a quiet street, only 650 meters from the beach and close to all amenities necessary for life and relaxation. Vodice offers a rich selection of beaches, restaurants, cultural and entertainment facilities, which makes this apartment suitable for living throughout the year or as an investment for tourist rental.

ID CODE: 901-A2

Bonum nekretnine
Mob: 095 750 5763
Tel: 022 644 555
E-mail: info@bonum.com.hr
www.bonum-nekretnine.com
Характеристики
Типология
Квартира
Договор
Продажа
Этаж
Нулевой этаж
Этажность здания
2
Лифт
Нет
Площадь
68 m²
Помещения
3
Спальни
2
Ванные
1
Балкон
Нет
Терраса
Да
Гараж, машиноместа
1 в общая парковка/гараж
Отопление
Автономное, воздушное
Кондиционер
Автономное, холод/тепло
Информация о ценах
Цена
€ 248 000
Цена за м²
3 647 €/m²
Энергоэффективность
  • Год постройки

    2026
  • Отопление

    Автономное, воздушное
  • Кондиционер

    Автономное, холод/тепло
  • Энергетическая сертификация

    Не классифицирована
Откройте для себя каждый уголок объекта недвижимости
+13
Доп. опции

Свяжитесь с рекламодателем

Или