Трехкомнатная квартира новое, первый этаж, Sveti Filip i Jakov

€ 289 972
3
84 m²
1
1

Пометка

Объявление обновлено 22.01.2026
Описание

This description has been translated automatically and may not be accurate

ID: 5140

A modern apartment for sale in a NEWLY BUILT / building with a total of 6 residential units, in a prime location near the sea in Sv. Petar na moru. The building consists of a ground floor, first and second floors, and has a sea view, and the distance to the beach is only 150 m!!
The property offers an incredible view of the island of Galešnjak, also known as the "Island of Love", located in the Zadar archipelago, and the crystal clear sea. Its romantic heart shape and untouched nature attract adventurers and lovers of wild landscapes, offering an unforgettable experience.
The building is currently under construction, completion of works is planned by 05/2026, and obtaining a use permit is expected by 09/2026.
 
 
BUILDING CHARACTERISTICS:
- Reinforced - concrete construction,
- Facade / thermal insulation 10 cm,
- Knauf partitions / double cladding,
- PVC joinery / triple glazing - lift-sliding walls,
- Roller shutters with built-in electric lifts and mosquito nets,
- Floor el. heating installed in the bathroom and living room - WIFI control option
- Cooling / Heating via Multi-split air conditioner - WIFI control option - in the living room and bedrooms
 
 
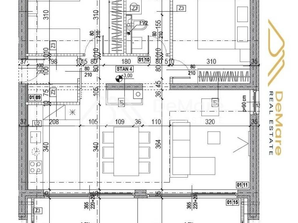
APARTMENT S4 ON THE 1ST FLOOR with two bedrooms
The apartment is located on the first floor and consists of:
≈ hallway / 3.70 m2,
≈ 2 bedrooms / 13.33 m2 and 11.93 m2,
≈ bathroom / 5.08 m2,
≈ entrance hall, / 3.95 m2,
≈ living room with kitchen and dining room / 34.21 m2,
≈ covered terrace / 18.70 m2.
The interior living space occupies a total of 72.20 m2.
The apartment also has one outdoor parking space / 12.50 m2 in the building's yard.
The total calculated useful value of the apartment's area with accessories is 84.05 m2.
 
There is a possibility of choosing ceramics and parquet from the three offered variants, according to the agreement with the investor and depending on the construction phases.
Payment of the first part is 10% of the property price (down payment), and for the remaining amount there is a possibility of financing with a housing loan.
The buyer pays an agency commission in the amount of 1,5 % + VAT.
The seller is a legal entity in the VAT system, so the buyer DOES NOT PAY real estate transfer tax.
For all additional questions and information, please feel free to call us!
De Mare d.o.o.
Tel: +385 23 300 400
Mail: info@demare.hr
 
LOCATION:
Sv. PETAR NA MORU is located about 15 km southeast of the city of Zadar and only 10 km northwest of the old town of Biograd na moru. The distance to Zemunik airport is 9 km.
This small town offers everything you need for everyday life and for an ideal vacation. Numerous restaurants, cafes and shops will make your stay in this place even more relaxing. Sv. Petar is a place known for its beautiful pebble beaches, and is close to the town of Biograd na moru, which offers numerous additional tourist facilities.
Если вы хотите узнать больше, вы можете поговорить с Marija Strenja.
Характеристики
Типология
Квартира
Договор
Продажа
Этаж
1 этаж
Этажность здания
2
Площадь
84 m²
Помещения
3
Спальни
2
Ванные
1
Отопление
Автономное, воздушное, блок питания
Кондиционер
Автономное, холод/тепло
Другие характеристики
  • Внешние рамы из стеклопакета / ПВХ
Информация о ценах
Цена
€ 289 972
Цена за м²
3 452 €/m²
Подробности о расходах
Плата за кондоминиум
Никаких кондоминиальных расходов
Энергоэффективность
  • Год постройки

    2025
  • Состояние

    Новое / На стадии строительства
  • Отопление

    Автономное, воздушное, блок питания
  • Кондиционер

    Автономное, холод/тепло
Откройте для себя каждый уголок объекта недвижимости
+19
Доп. опции

Свяжитесь с рекламодателем

Или