Двухкомнатная квартира новое, Diklo - Puntamika, Задар

€ 202 800
2
50 m²
1
T

Пометка

Объявление обновлено 17.04.2026
Описание

This description has been translated automatically and may not be accurate

ID: 5015

For sale are apartments in a new building in a prime location in Zadar, in the Borik area, close to all amenities needed for everyday life, as well as well-maintained beaches.
The apartment is located in a multi-apartment building with a total of 9 apartments, which has four floors: basement, ground floor, first and second floor. There are storage rooms in the basement, and parking spaces for tenants are located in the building's yard.
The building is currently under construction, and the completion of the construction work is planned for the summer of 2026.
 
BUILDING EQUIPMENT:
- Brick-concrete building structure
- Thermal facade / Styrofoam - 10 cm
- Storage rooms/pantries in the basement of the building
- PVC joinery with built-in mosquito nets
- Roller shutters with electric lifts
- Stone-clad staircase
- Large lift-and-slide glass walls
 
 
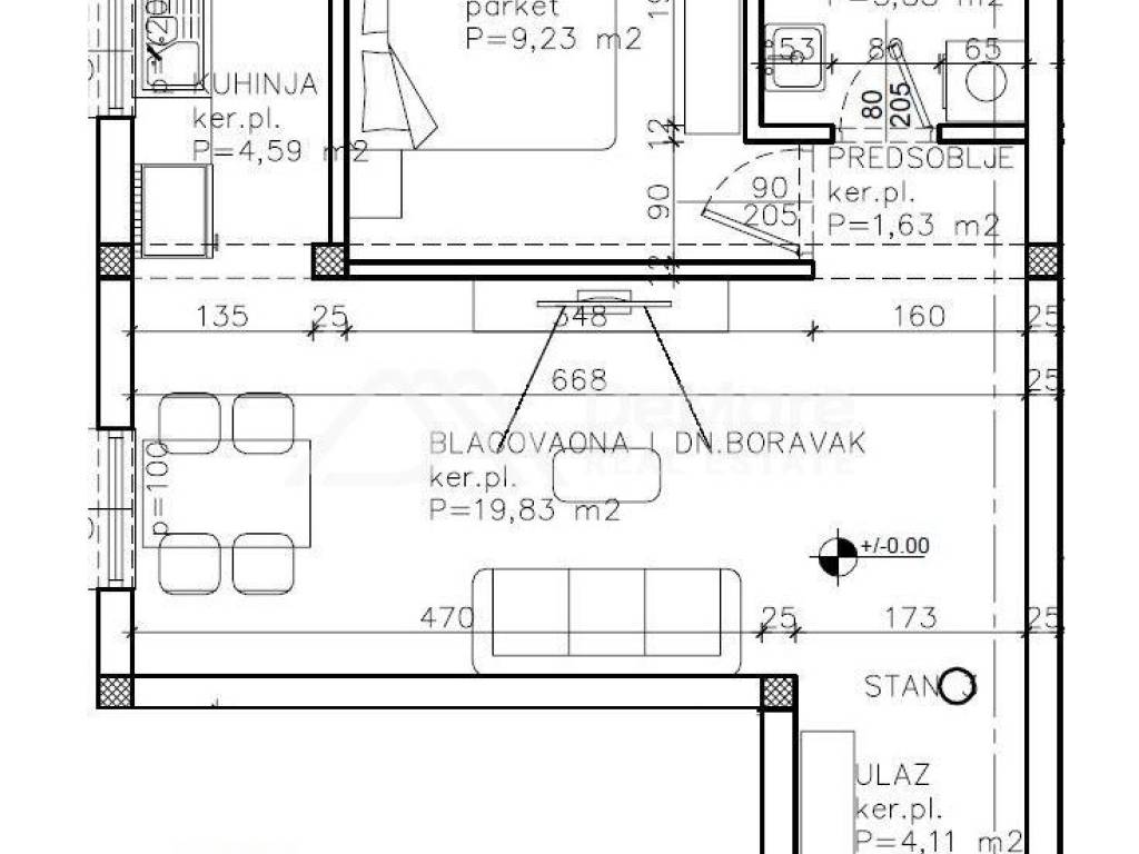
GROUND FLOOR S3 - One-bedroom apartment
The apartment is located on the ground floor of the building and consists of:
- Entrance hall / hallway (4.11 m2),
- Kitchen (4.59 m2),
- Living room with dining room (19.83 m2)
- Bedroom (9.23 m2),
- Bathroom (3.88 m2),
- Hall (1.63 m2).
The interior of the apartment occupies a usable area of ​​43.27 m2.
In the basement of the building there is a spacious storage room (9.80 m2), and in the building's yard there is a part of the garden (approx. 30 m2) that can be attached to the apartment and one outdoor parking space that belongs to the apartment.
The total net calculated value of the usable area of ​​the apartment with its belongings is 50.70 m2.
 
 
APARTMENT EQUIPMENT:
- Burglar and fireproof entrance doors with comprehensive frames
- Electric underfloor heating installed throughout the apartment
- Quality sanitary ware
- Cooling / Heating via air conditioning units - which are installed in all rooms
- There is a possibility of choosing floor coverings (parquet and tiles) within the given budget
Payment of the first part of the amount is 10% of the price of the property (down payment), and for the remaining amount there is an option of financing with a housing loan.
THE ADVANTAGE of buying this property is that the investor is a legal entity, so the buyer DOES NOT PAY real estate tax.
Due to high demand, book your apartment on time.
For a tour of the location / property and all other information, please feel free to contact us.
 
 
LOCATION:
The location of the property is excellent due to the proximity of the sea approx. 650 m and the beach approx. 800 m, and all the amenities needed for everyday life, the distance to the city center is approx. 2.5 km, and from the Zemunik airport is approx. 12 km.
BORIK is known as the part of the city of Zadar with the most beautiful beaches, and is located right on the coast with plenty of vacation accommodation and various amenities. A long local promenade with a beach, leads to local marinas and harbors, and from the pebble coast there is a view of the islands of the Zadar archipelago. The kilometer-long Borik beach is located 4 km north of the city center, near the small marina of the same name. The beach with fine gravel and sandy sections is popular with both children and adults, because the coast that gently slopes into the crystal clear sea, as well as recreational opportunities, promise fun in the water and on the shore. The Blue Flag guarantees high quality water and beach.
The city of Zadar is located in the very center of the Adriatic coast, is characterized by a mild Mediterranean climate, and is surrounded by 4 National Parks (Plitvice Lakes, Paklenica, Krka Waterfalls and the Kornati archipelago).
Zadar Airport is only 12 km from the city center and is well connected to many European cities and destinations. The Zadar Ferry Port is approximately 6 km away, has lines with most islands, and during the summer season is a stop for numerous tourist cruisers.
Если вы хотите узнать больше, вы можете поговорить с Ivo Strenja.
Характеристики
Типология
Квартира
Договор
Продажа
Этаж
Нулевой этаж
Этажность здания
2
Площадь
50 m²
Помещения
2
Спальни
1
Ванные
1
Гараж, машиноместа
1 в общая парковка/гараж
Отопление
Автономное, воздушное, блок питания
Кондиционер
Автономное, холод/тепло
Расстояние до моря
1 m
Другие характеристики
  • Внешние рамы из стеклопакета / ПВХ
  • Железная дверь
Деталь поверхности

Жилой фонд

Этаж
Нулевой этаж
Площадь
50,7 m²
Коэффициент
100%
Тип площади
Основная
Коммерческая площадь
50,7 m²
Информация о ценах
Цена
€ 202 800
Цена за м²
4 056 €/m²
Подробности о расходах
Плата за кондоминиум
Никаких кондоминиальных расходов
Энергоэффективность
  • Год постройки

    2026
  • Состояние

    Новое / На стадии строительства
  • Отопление

    Автономное, воздушное, блок питания
  • Кондиционер

    Автономное, холод/тепло
Откройте для себя каждый уголок объекта недвижимости
+10
Доп. опции

Свяжитесь с рекламодателем

Или