map icon

Квартира новое, нулевой этаж, Nin

Nin
€ 360 000
5
76 m²
1
T
Да
Терраса

Пометка

Объявление обновлено 23.12.2025
Описание

This description has been translated automatically and may not be accurate

ID: 3851-1

Luxury flat/apartment for sale only 20 m from the sea in Zaton. It is a new building with an elevator, in the 2.nd row to the sea in Zaton near Zadar, this apartment has a sea view.
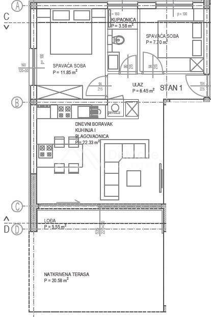
The apartment on the ground floor consists of a hallway, 2 bedrooms, a bathroom, a kitchen with a dining room and a living room, and a covered terrace. The net usable area of the described surfaces with a terrace is 66.36 m2. In addition, the apartment has two parking spaces and a garden of approx. 29 m2.
The total calculated usable surface of this apartment with all accessories is 76.41 m2.
The estimated deadline for moving in is the summer of 2024.
The investor is a company, so the buyer does not pay real estate sales tax.

Payment of the first part of the amount is 10% of the selling price of the property (down payment), and for the rest of the amount, possibility of financing with a housing loan.
This property is only 700 m from the center of Zaton, and the city of Zadar is about 12 km away.

Equipment:
Construction with brick thermal blocks. Facade thermal insulation is 10 cm styrofoam. The floor coverings are tiles and parquet. Aluminum windows with three-layer glass, mosquito nets and electric shutters and blinds. Air conditioners are in the living room and in each bedroom. In addition, underfloor heating with a heat pump and air conditioning (Mitshubishi). Furthermore, the entrance door is burglar-proof and fire-proof. There also is an outdoor shower in the garden.
Energy certificate A is expected for this property.

Location:
Zaton is a small tourist town located between two historical cities - Nin (2 km) and Zadar (12 km), it represents a unique combination of Dalmatian architecture, pleasant Mediterranean climate, preserved nature, rich cultural and historical heritage and lively tourist everyday life.
Sandy beaches in the shade of centuries-old pines are ideal for families with children.
Nin is a place known for its sandy beaches and healing mud, and is located in the immediate vicinity of Paklenica and Kornati National Parks.
Характеристики
Типология
Квартира
Договор
Продажа
Этаж
Нулевой этаж
Лифт
Да
Площадь
76 m²
Помещения
5
Спальни
2
Ванные
1
Терраса
Да
Кондиционер
Централизованное, холод/тепло
Другие характеристики
  • Железная дверь
Информация о ценах
Цена
€ 360 000
Цена за м²
4 737 €/m²
Энергоэффективность
  • Год постройки

    2025
  • Состояние

    Новое / На стадии строительства
  • Кондиционер

    Централизованное, холод/тепло
  • Энергетическая сертификация

    Не классифицирована
Откройте для себя каждый уголок объекта недвижимости
+14
Доп. опции

Свяжитесь с рекламодателем

Или