Магазин - Коммерческое помещение Продажа

€ 140 140
40 m²

Пометка

Объявление обновлено 03.10.2025
Описание

This description has been translated automatically and may not be accurate

ID: PP46

Сплит, Мејаши, пословни простор ПП2, 40,04 м2

Сплит, Меяши, современное жилое и коммерческое здание, расположенное в тихом районе города, в непосредственной близости от всех необходимых объектов (школы, детские сады, магазины, спортивные площадки, общественный транспорт). Идеальное сочетание городской жизни и уединения.



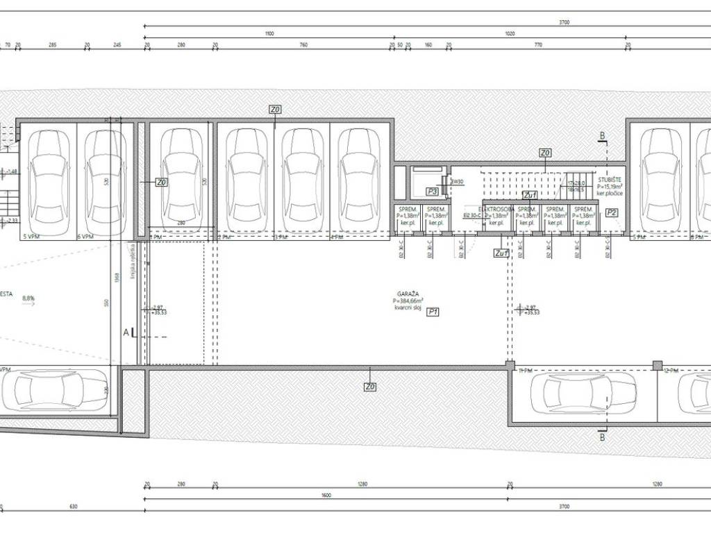
Здание состоит из подвала, первого этажа и трёх этажей, всего 6 жилых единиц и 7 коммерческих помещений.

Частная открытая парковка (8 парковочных мест) и гаражные места в цокольном этаже (13 гаражных мест).



Коммерческие помещения имеют завершённый фасад, отшлифованный бетонный пол и проведённые водопроводные, канализационные, электрические сети и подключения слаботочных систем.



Все этажи связаны вертикальной коммуникацией в виде закрытой однопролётной лестницы и лифта.



Высококачественное строительство с упором на энергетическую эффективность. Несущая конструкция — железобетонная с толщиной стен 20 см. Межэтажные и кровельные конструкции выполнены из железобетонных плит толщиной 20 см.



Инвестор — юридическое лицо, поэтому покупатели не платят налог на передачу недвижимости. Возможна покупка в кредит с первоначальным взносом 30%. Строительство начато. Ожидаемый срок завершения строительства — конец 2026 года.



КОММЕРЧЕСКОЕ ПОМЕЩЕНИЕ 2 – ПЕРВЫЙ ЭТАЖ



- PP2 (цементная глазурь, roh-bau) 37,85 м2
- газон (21,94 x 0,10) 2,19 м2
общая площадь: 59,79 м2
продажа общей площади 40,04 м2

ЦЕНА КОММЕРЧЕСКОГО ПОМЕЩЕНИЯ - 140 140 EUR

Внешнее парковочное место – 12 000 EUR

Гаражное парковочное место – 20 000 EUR



По всем вопросам, а также для просмотра данной недвижимости обращайтесь к нам с доверием.



Контакт:

Ранко Цвитанич, +385 95 368 8 368
Характеристики
Договор
Продажа
Площадь
40 m²
Этажность здания
2
Другие характеристики
  • Расположение юг
Информация о ценах
Цена
€ 140 140
Цена за м²
3 504 €/m²
Энергоэффективность
  • Год постройки

    2025
  • Отопление

    Автономное, радиатор, блок питания
  • Энергетическая сертификация

    Не классифицирована
Откройте для себя каждый уголок объекта недвижимости
+7
Доп. опции

Свяжитесь с рекламодателем

Или