map icon

Квартира 61 m², Pag

Pag
€ 222 000
61 m²
Нет

Пометка

Объявление обновлено 07.10.2025
Описание

ID: EK-672625

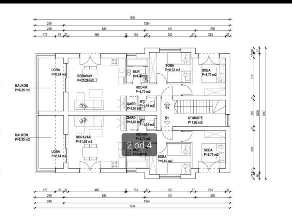
Na prodaju su dva apartmana smještena na drugom, ujedno i zadnjem katu manje stambene zgrade s ukupno 6 stanova. Apartmane je moguće kupiti odvojeno ili zajedno.

Svaki apartman sastoji se od 52 m² unutarnjeg prostora kojem se pridružuju lođa i balkon površine 9,2 m², što ukupno čini 61 m² stambenog prostora. Uz to, svakom apartmanu pripada jedno vanjsko parkirno mjesto od 13,5 m² te privatna krovna terasa od približno 72 m² s otvorenim pogledom na more, koja pruža dodatni luksuz i prostor za uživanje.

Kupnjom oba apartmana stvara se mogućnost uređenja penthousea s više od 120 m² unutarnjeg prostora i čak 144 m² privatne krovne terase. To omogućuje luksuzan životni prostor s panoramskim pogledom na more - idealno za jacuzzi, pergolu, lounge zonu ili ljetnu kuhinju.

Lokacija - Povljana, otok Pag
Povljana je mirno i obiteljsko mjesto smješteno na južnom dijelu otoka, poznato po pješčanim i šljunčanim plažama te kristalno čistom moru. Odlikuje je i izvrsna prometna povezanost - autocesta i Paški most nalaze se svega 15 minuta vožnje, što omogućuje brz i jednostavan dolazak. Sama zgrada udaljena je samo 400-500 metara od mora i plaže, što ovu nekretninu čini posebno atraktivnom za odmor ili cjelogodišnje stanovanje.

Zgrada je u izgradnji, a završetak radova i uporabna dozvola očekuju se krajem godine (predviđeno 11. mjeseca). Stanovi će biti etažirani i s urednom dokumentacijom.

•Cijena: 222.000 € po apartmanu!

•Kupac ne plaća agencijsku proviziju!

•Mogućnost kupnje oba apartmana i formiranjaekskluzivnog penthousea s krovnom terasom.

Ova nekretnina pruža rijetku priliku na tržištu - spoj moderne novogradnje, atraktivne lokacije i velike privatne terase s pogledom koji oduzima dah.

Za sve dodatne informacije i razgled nekretnine stojim na raspolaganju.

Lila nekretnine - vaš agent za nekretnine

Posredovanje se provodi u skladu sa Zakonom o posredovanju u prometu nekretnina.
Характеристики
Типология
Квартира
Договор
Продажа
Лифт
Нет
Площадь
61 m²
Меблировано
Нет
Балкон
Нет
Терраса
Нет
Информация о ценах
Цена
€ 222 000
Цена за м²
3 639 €/m²
Энергоэффективность
  • Энергетическая сертификация

    В ожидании сертификации
Откройте для себя каждый уголок объекта недвижимости
+3
Доп. опции

Свяжитесь с рекламодателем

Или