Отдельный дом на одну семью 223 m², новая, Nin

€ 1 450 000
4
223 m²
3+
Нет
Балкон

Пометка

Объявление обновлено 08.10.2025
Описание

This description has been translated automatically and may not be accurate

ID: iro-698982

ЗАДАР - ЗАТОН, ВИЛЛА 223,23 М2, ПРОДАЖА, ВИД, МЕСТОПОЛОЖЕНИЕ, БАССЕЙН, НОВО!!!

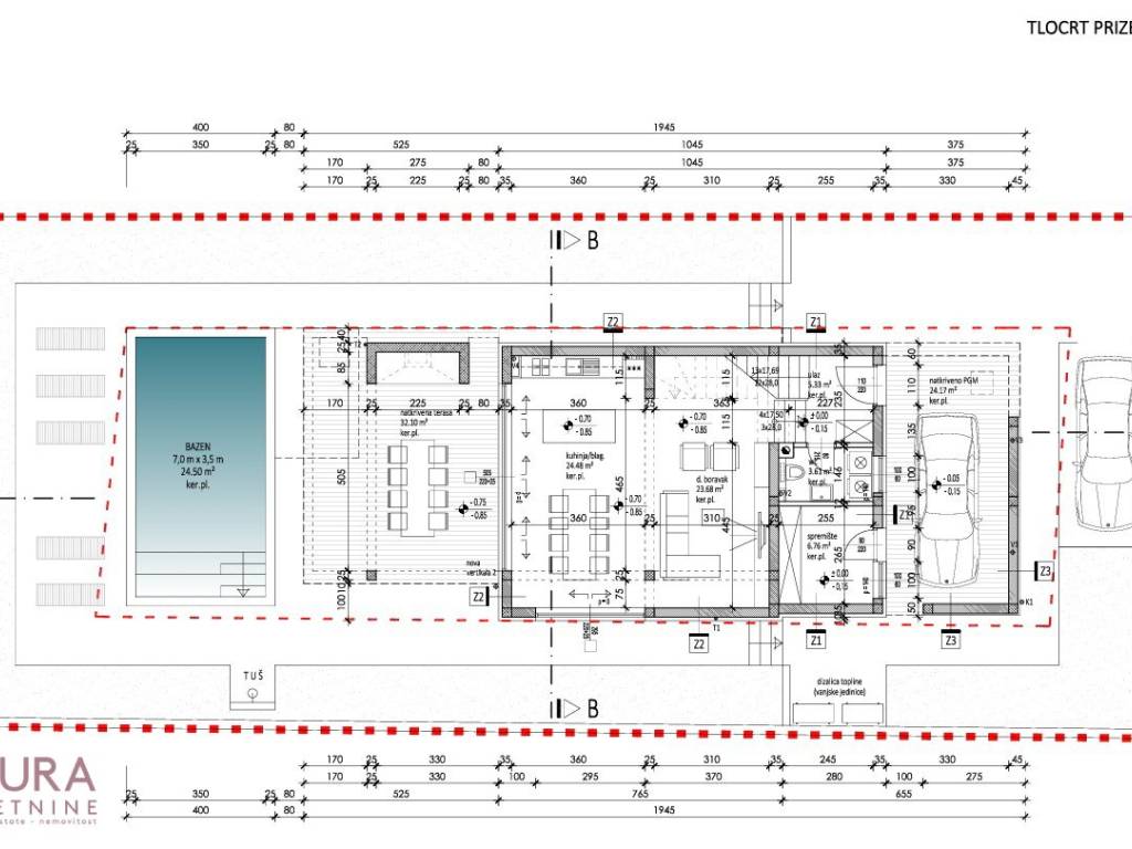
Задар - Затон, продается отдельно стоящий двухэтажный дом с жилой площадью 223,23 м2 и участком 293 м2, построенный в 2025 году на земельном участке площадью 468 м2, высококачественное строительство.

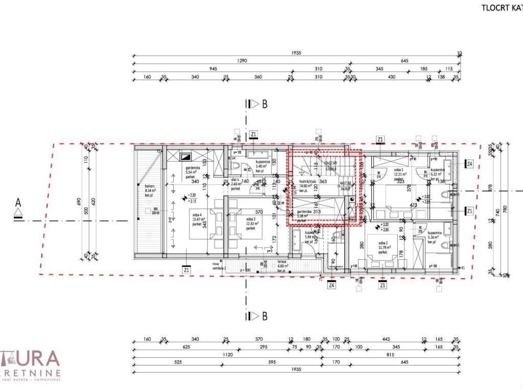
Состоит из цокольного этажа и этажа:

- цокольный этаж: прихожая, гостиная, кухня + столовая, кладовая, туалет и терраса.

- этаж: четыре спальни, четыре ванные комнаты, коридор, две гардеробные, балкон и терраса.

ИЗ ДОМА ОТКРЫВАЕТСЯ ПРЕКРАСНЫЙ ВИД НА МОРЕ!!!

Расположен в отличном месте, в 83 м от моря и пляжа "Пунта", рядом со всеми необходимыми удобствами для комфортной жизни и отдыха!!!

Имеется два парковочных места, бассейн площадью 30 м2 и крытая терраса площадью 56,78 м2.

Документация в порядке.
Характеристики
Типология
Отдельный дом на одну семью | Средний класс недвижимости
Договор
Продажа
Лифт
Нет
Площадь
223 m²
Помещения
4
Спальни
4
Ванные
3+
Балкон
Да
Терраса
Нет
Отопление
Автономное, воздушное
Кондиционер
Автономное
Другие характеристики
  • Бассейн
Информация о ценах
Цена
€ 1 450 000
Цена за м²
6 502 €/m²
Энергоэффективность
  • Год постройки

    2025
  • Состояние

    Новое / На стадии строительства
  • Отопление

    Автономное, воздушное
  • Кондиционер

    Автономное
Откройте для себя каждый уголок объекта недвижимости
+19
Доп. опции

Свяжитесь с рекламодателем

Или