Трехкомнатная квартира Trnava, Trnava, Загреб

€ 271 075
3
77 m²
3

Пометка

Объявление обновлено 03.03.2026
Описание

ID: EUROVILLA-820814

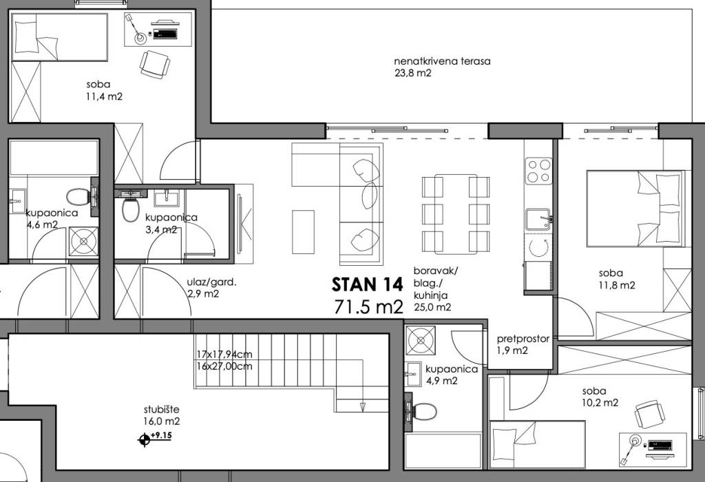
Četverosoban stan zatvorene površine 71,50 m2 smješten na 3. katu.Sastoji se od ulaza/garderobe, 3 spavaće sobe, dnevnog boravka, kuhinje s blagovaonicom, 2 kupaonice, pretprostora te nenatkrivene terase.Uz stan je obavezna kupnja spremišta te parkirnog mjesta.-----Projekt suvremene stambene novogradnje s liftom izvedene u armirano-betonskoj konstrukciji s monolitnim međukatnim pločama. Pregradni zidovi izrađeni su po Knauf sustavu s ispunom od mineralne vune, a zidovi između stanova dodatno su toplinski i zvučno izolirani. Objekt je projektiran s ravnim, neprohodnim krovom u višeslojnoj izvedbi te ETICS fasadom s mineralnom vunom i stiroporom debljine 15 cm i završnim slojem silikatne žbuke.Vanjska PVC stolarija opremljena je toplinski izoliranim roletama na elektromotorni pogon, kliznim stijenama i komarnicima na svim otvorima. Unutarnja stolarija izrađena je od drva, sa zvučno izoliranim vratima, dok su ulazna vrata protuprovalna, protupožarna i zvučno izolirana.Zajednički dijelovi zgrade uključuju ulaz i stubišta obložena granitom, videonadzor, te posebno brojilo plina, vode i struje za svaki stan s mogućnošću daljinskog očitanja. U okolišu su predviđeni asfaltirani i betonski kolni prilazi, hortikulturno uređene zelene površine, dekorativna rasvjeta i odvojeni prostor za spremanje otpada.Stanovi imaju visinu prostorija od od 260 do 270 cm u dnevnim dijelovima i od 250 cm - 260 cm u kupaonicama i hodnicima. Sanitarne prostorije opremljene su kvalitetnim uređajima svjetskih proizvođača poput GROHE i TECE, s fleksibilnom hidroizolacijom, keramikom I. klase te podnim grijanjem. Predviđena je mogućnost odabira između kade ili tuš izvedbe s paravanima od kaljenog stakla. Podovi stanova obloženi su višeslojnim hrastovim parketom, dok su kuhinje, kupaonice i lođe izvedene u keramičkim pločicama.Grijanje i priprema tople vode predviđeni su putem kondenzacijskih plinskih bojlera i podnog grijanja u svim prostorijama, uz termostate u svakoj sobi. Stanovi će biti klimatizirani inverter klima uređajima (multi-split sustav). Ventilacija sanitarnih prostora riješena je niskošumnim ventilatorima, a kuhinje imaju predviđene odsisne sustave.Elektroinstalacije uključuju videoportafon u boji, LED rasvjetu, informatičku mrežu cat 6, utičnice za TV i internet u svakoj sobi te rolete na elektromotorni pogon. Sve kupaonice imaju dodatne priključke i rasvjetu prilagođenu modernom standardu.Investitor daje jamstvo na konstrukciju i hidroizolaciju od 10 godina, na ostale radove 2 godine, a na opremu i uređaje prema jamstvu proizvođača. Posebna pažnja posvećena je odabiru materijala i izvedbi, pri čemu su korišteni isključivo kvalitetni i provjereni sustavi, čime je osigurana trajnost i visoki standard stanovanja.... Više na eurovilla.hr, ID: 820814
Если вы хотите узнать больше, вы можете поговорить с Nenad Tatarinov.
Характеристики
Типология
Квартира
Договор
Продажа
Этаж
3
Площадь
77 m²
Помещения
3
Спальни
3
Деталь поверхности

Жилой фонд

Этаж
3
Площадь
77,5 m²
Коэффициент
100%
Тип площади
Основная
Коммерческая площадь
77,5 m²
Информация о ценах
Цена
€ 271 075
Цена за м²
3 520 €/m²
Энергоэффективность
  • Состояние

    Новое / На стадии строительства
  • Энергетическая сертификация

    Не подлежащий
Планировка
Откройте для себя каждый уголок объекта недвижимости
+10
Доп. опции

Свяжитесь с рекламодателем

Или