1/10


Трехкомнатная квартира новое, первый этаж, Savudrija, Zambratija, Crveni Vrh, Umag
€ 341 300
3
80 m²
2
1
Терраса
Меблировано
Объявление обновлено 10.12.2025
Описание
ID: 773
ID CODE: 773
Milena Miličević
Voditelj ureda
Mob: +385 95 7690711
E-mail: milena.quadroimmobili@gmail.com
www.quadro-immobili.hr
Характеристики
- Типология
- Квартира | Вся недвижимость
- Договор
- Продажа
- Этаж
- 1
- Этажность здания
- 1
- Площадь
- 80 m²
- Помещения
- 3
- Спальни
- 2
- Ванные
- 2
- Меблировано
- Да
- Балкон
- Нет
- Терраса
- Да
- Кондиционер
- Автономное, холод/тепло
Деталь поверхности
Другое
- Этаж
- 1
- Площадь
- 80,0 m²
- Коэффициент
- 100%
- Тип площади
- Основная
- Коммерческая площадь
- 80,0 m²
Информация о ценах
- Цена
- € 341 300
- Цена за м²
- 4 266 €/m²
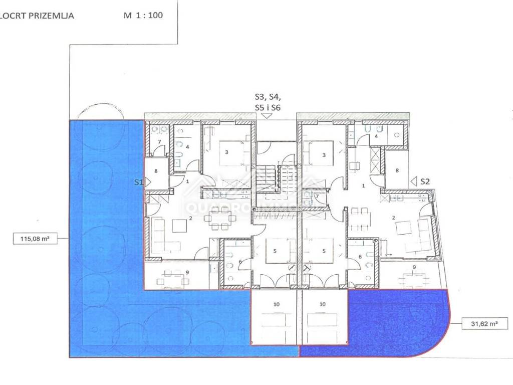
Планировка

Откройте для себя каждый уголок объекта недвижимости
Доп. опции