map icon

Односемейная вилла 167 m², новая, Sveti Filip i Jakov

Sveti Filip i Jakov
€ 780 000
5+
167 m²
3+

Пометка

Объявление обновлено 23.12.2025
Описание

ID: 963-1

PREDIVNA VILLA S BAZENOM - TURANJ - 350m od mora

Predstavljamo vam ekskluzivnu vilu, smještenu u prekrasnom Turnju, samo 350 metara od mora. Ova luksuzna vila, čija je neto površina 166,6 m2, predstavlja vrhunac modernog stanovanja, s planiranim završetkom radova do ljeta 2025. godine.

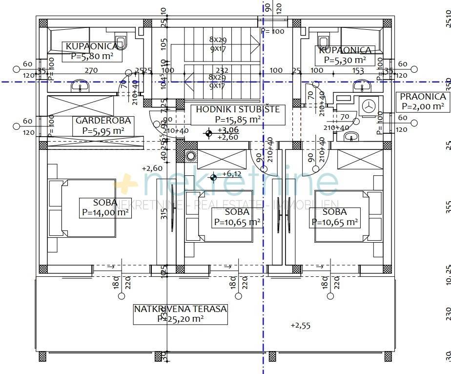
Arhitektura prizemlja ove vile nudi prostrani dnevni boravak, kuhinju s blagovaonicom, spavaću sobu, kupaonicu, zaseban wc, te funkcionalno spremište. Također, tu je natkrivena terasa površine 25 m2, koja pruža idealan prostor za relaksaciju.

Na prvom katu nalaze se tri prostrane spavaće sobe, dvije kupaonice i vešeraj. Glavna spavaća soba, veličine 14 m2, očarava svojom odvojenom garderobom i privatnom kupaonicom. Iz sve tri sobe na prvom katu se izlazi na natkrivenu terasu(25m2) koja pruža spektakularan pogled na more i otoke.

U prizemlju je postavljeno podno grijanje po cijeloj etaži, te u kupaonicama na prvom katu. Svaka soba opremljena je klima uređajem.
Naglasak je stavljen na korištenje materijala najviše kvalitete tijekom izgradnje!

Eksterijer vile krase veliki bazen površine 31,5 m2 (9x3,5m) i dva parkirna mjesta, dok će okoliš biti pažljivo uređen u autentičnom mediteranskom stilu. Ova vila je savršen izbor za one koji traže luksuz, privatnost i neposrednu blizinu mora, pružajući neusporedivu kombinaciju modernog luksuza i prirodne ljepote. Ostvarite svoj san o savršenom domu na Jadranu.

Nemojte propustiti ovu priliku,
Obratite nam se s povjerenjem.
Если вы хотите узнать больше, вы можете поговорить с Jakov Kutija.
Характеристики
Типология
Односемейная вилла
Договор
Продажа
Этаж
1
Площадь
167 m² | коммерческая 711 m²
Помещения
5+
Спальни
3
Ванные
3+
Деталь поверхности

Жилой фонд

Этаж
1
Площадь
167,0 m²
Коэффициент
100%
Тип площади
Основная
Коммерческая площадь
167,0 m²

Участок

Этаж
Нулевой этаж
Площадь
544,0 m²
Коэффициент
100%
Тип площади
Дополнительная
Коммерческая площадь
544,0 m²
Информация о ценах
Цена
€ 780 000
Цена за м²
1 097 €/m²
Энергоэффективность
  • Год постройки

    2025
  • Состояние

    Новое / На стадии строительства
  • Энергетическая сертификация

    Не классифицирована
Откройте для себя каждый уголок объекта недвижимости
+7
Доп. опции

Свяжитесь с рекламодателем

Или