map icon

Квартира новое, четвертый этаж, Turan - Kantrida - Costabella, Ријека

РијекаTuran - Kantrida - Costabella
€ 397 911
5+
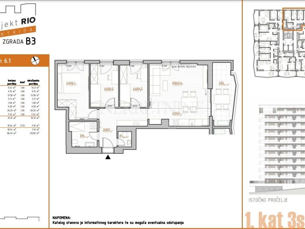
84 m²
1
4

Пометка

Объявление обновлено 07.03.2026
Описание

ID: 4183-1

Stan se nalazi u kompleksu RIO Kantrida na atraktivnoj lokaciji Kantrida Marčeljeva Draga, to je lokacija na pola puta između centra Rijeke i Opatije. Idealna pozicija stanova omogućava dostupnost svim sadržajima školi i vrtiću, zelenim površinama, šetnicama, shopping centrima, sportskim terenima i ostalim bitnim društvenim i javnim sadržajima, s pogledom na opatijsku rivijeru, more i otoke.
Planirana je višestambena građevina sa 78 stambenih jedinica raspoređenih na 11 etaža, prizemlje i deset katova. Na etaži suterena (-1) i podruma (-2) planiran je smještaj sveukupno 104 garažna parkirna mjesta.
Izgradnja stanova je planirana sa visoko kvalitetnim materijalima koji zadovoljavaju najviše kriterije gradnje koje prati moderno i sofisticirano uređenje.
Raspon cijene stanova, ovisno o etaži i orijentaciji, je od 3.390,00 /m do 4.290,00 /m.
Cijena spremišta iznosi 3.390,00/m dok je cijena garažnog parkirališnog mjesta 2.690,00/m.
Dovršetak projekta i useljenje očekuju se do 30.06.2025..
NAPOMENA: Kupac plaća agencijsku proviziju od 1% + PDV
Характеристики
Типология
Квартира
Договор
Продажа
Этаж
4 этаж
Площадь
84 m²
Помещения
5+
Спальни
3
Ванные
1
Информация о ценах
Цена
€ 397 911
Цена за м²
4 737 €/m²
Энергоэффективность
  • Год постройки

    2025
  • Состояние

    Новое / На стадии строительства
  • Энергетическая сертификация

    Не классифицирована
Откройте для себя каждый уголок объекта недвижимости
+8
Доп. опции

Свяжитесь с рекламодателем

Или