Отдельный дом на одну семью 161 m², Poličnik

€ 360 000
4
161 m²
3
Нет

Пометка

Объявление обновлено 10.11.2025
Описание

ID: 108161-406

POLIČNIK - 13KM SJEVERNO OD ZADRA - VRLO MIRNA LOKACIJA

Prodaje se kuća katnica sa pomoćnim objektom, ukupne površine 161,8m2 u rohbau stanju. Kuća ima tlocrtu površinu 133m2 dok je pomoćni objekt koji je zamišljen kao prostor za roštilj i jacuzzi ili saunu površine 27,31m2. Pored kuće se smjestio i bazen površine 32m2.

Zemljište na kojem se objekti nalaze ukupne je površine 1313m2 te se sastoji od dvije čestice: 741m2 i i 572m2. Izgrađeni objekti se nalaze na čestici 572m2 površine dok za česticu 741m2 postoji projekt sa ishodovanom građevinskom dozvolom.

Cijena od 360.000 Eura vrijedi za sve prethodno navedeno u stanju kakvom je trenutno prikazano na fotografijama uz mogućnost dovršetka projekta do kraja od strane prodavatelja ali u tom slučaju potreban je dogovor o dodatnom financiranju završetka projekta.

Prema projektu, zamišljeno je postavljanje dizalica topline, PVC stolarija je već postavljena te je osigurana keramika za oblaganje podova.

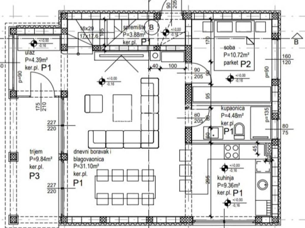
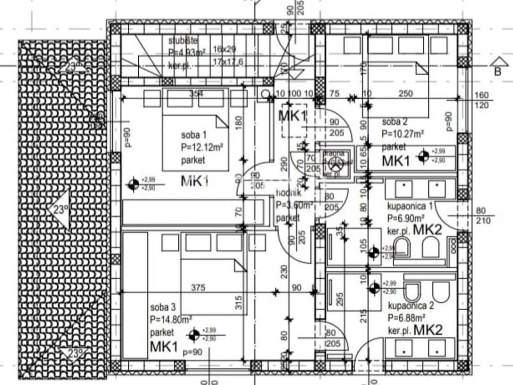
Kuća se sastoji od prizemlja i kata. U prizemlju nalazimo ulazni dio, veliki dnevni boravak s kuhinjom i blagovaonom, jednu spavaću sobu, kupaonu i terasu. Unutrašnjim stubištem dolazimo na kat na kojem su smještene tri spavaće sobe od kojih jedna ima vlastitu kupaonu te još jedna kupaona.

Lokacija nekretnine je iznimno mirna, okružena šumom i nasadima maslina te će tako uvijek i ostati.

Prometna povezanost sa Zadrom je odlična, jednostavno i brzo se stiže do Zadra, potrebno je svega 10min vožnje dok su prve plaže smješte u mjestima Ražanac i Posedarje udaljene svega 7km od ove nekretnine.

Uvid u sve materijale, građevinske dozvole, vlasnički list, moguće je prezentirati prilikom posjete nekretnine.

Više informacija i razgledavanje:

+385 99 701 6618

marin.roncevic@c21.hr




ENGLSIH:

POLIČNIK - 13KM NORTH OF ZADAR - VERY QUIET LOCATION

For sale is a two-story house with an auxiliary building, total area 161.8m2 in a shell construction condition. The house has a floor area of 133m2, while the auxiliary building, designed as a space for barbecue and jacuzzi or sauna, has an area of 27.31m2. Next to the house, there is also a pool with an area of 32m2.

The land on which the buildings are located has a total area of 1313m2 and consists of two parcels: 741m2 and 572m2. The constructed buildings are located on the 572m2 parcel, while there is a project with an obtained building permit for the 741m2 parcel.

The price of 360,000 Euros applies to all the aforementioned in the current state as shown in the photos, with the possibility of completing the project by the seller, but in that case, an agreement on additional financing of the project completion is required.

According to the project, the installation of a heat pump is planned, PVC carpentry is already installed, and ceramics for floor tiling are provided.

The house consists of a ground floor and an upper floor. On the ground floor, there is an entrance area, a large living room with kitchen and dining room, one bedroom, a bathroom, and a terrace. The internal staircase leads to the upper floor, which houses three bedrooms, one of which has its own bathroom, plus another bathroom.

The location of the property is extremely quiet, surrounded by forest and olive groves, and this will always remain so.

Transportation connection with Zadar is excellent; it is simple and quick to reach Zadar, requiring only a 10-minute drive, while the nearest beaches located in Ražanac and Posedarje are only 7km from this property.

All documents, building permits, and ownership certificates can be reviewed during the property visit.

For more information and viewing:

+385 99 701 6618

marin.roncevic@c21.hr




DE:

POLIČNIK - 13 KM NÖRDLICH VON ZADAR - SEHR RUHIGE LAGE

Zum Verkauf steht ein mehrstöckiges Haus mit einem Nebengebäude, insgesamt 161,8 m2 in Rohbauzustand. Das Haus hat eine Grundfläche von 133 m2, während das Nebengebäude, das als Grillbereich mit Jacuzzi oder Sauna konzipiert ist, eine Fläche von 27,31 m2 hat. Neben dem Haus befindet sich ein Swimmingpool mit einer Fläche von 32 m2.

Das Grundstück, auf dem sich die Objekte befinden, hat eine Gesamtfläche von 1313 m2 und besteht aus zwei Parzellen: 741 m2 und 572 m2. Die errichteten Gebäude befinden sich auf der Parzelle mit 572 m2, während für die Parzelle mit 741 m2 ein Projekt mit erteilter Baugenehmigung vorliegt.

Der Preis von 360.000 Euro gilt für das gesamte zuvor Beschriebene im Zustand, wie er auf den Fotos dargestellt ist, mit der Möglichkeit einer Fertigstellung des Projekts durch den Verkäufer. In diesem Fall ist jedoch eine Vereinbarung über eine zusätzliche Finanzierung der Projektfertigstellung erforderlich.

Gemäß dem Projekt ist die Installation einer Wärmepumpe vorgesehen, PVC-Fenster und -Türen sind bereits eingebaut und Keramik für die Bodenbeläge ist gesichert.

Das Haus besteht aus Erdgeschoss und Obergeschoss. Im Erdgeschoss befinden sich der Eingangsbereich, ein großes Wohnzimmer mit Küche und Esszimmer, ein Schlafzimmer, ein Badezimmer und eine Terrasse. Über eine Innentreppe gelangt man in das Obergeschoss, wo sich drei Schlafzimmer befinden, von denen eines ein eigenes Badezimmer hat, sowie ein weiteres Badezimmer.

Die Lage der Immobilie ist außerordentlich ruhig, umgeben von Wald und Olivenplantagen und wird stets so bleiben.

Die Verkehrsanbindung an Zadar ist ausgezeichnet, man erreicht Zadar einfach und schnell in nur 10 Minuten Fahrt, während die ersten Strände in den Orten Ražanac und Posedarje nur 7 km von der Immobilie entfernt sind.

Einblick in alle Unterlagen, Baugenehmigungen und Eigentumsurkunden kann bei der Besichtigung der Immobilie gewährt werden.

Weitere Informationen und Besichtigungen:

+385 99 701 6618

marin.roncevic@c21.hr
Если вы хотите узнать больше, вы можете поговорить с Marin Rončević.
Характеристики
Типология
Отдельный дом на одну семью | Средний класс недвижимости
Договор
Продажа
Лифт
Нет
Площадь
161 m²
Помещения
4
Спальни
4
Ванные
3
Балкон
Нет
Терраса
Нет
Другие характеристики
  • Бассейн
Информация о ценах
Цена
€ 360 000
Цена за м²
2 236 €/m²
Энергоэффективность
  • Год постройки

    2025
  • Энергетическая сертификация

    В ожидании сертификации
Откройте для себя каждый уголок объекта недвижимости
+28
Доп. опции

Свяжитесь с рекламодателем

Или