Квартира новое, первый этаж, Tar-Vabriga

€ 200 640
5
63 m²
1
1
Да

Пометка

Объявление обновлено 14.03.2026
Описание

This description has been translated automatically and may not be accurate

ID: 2346-1

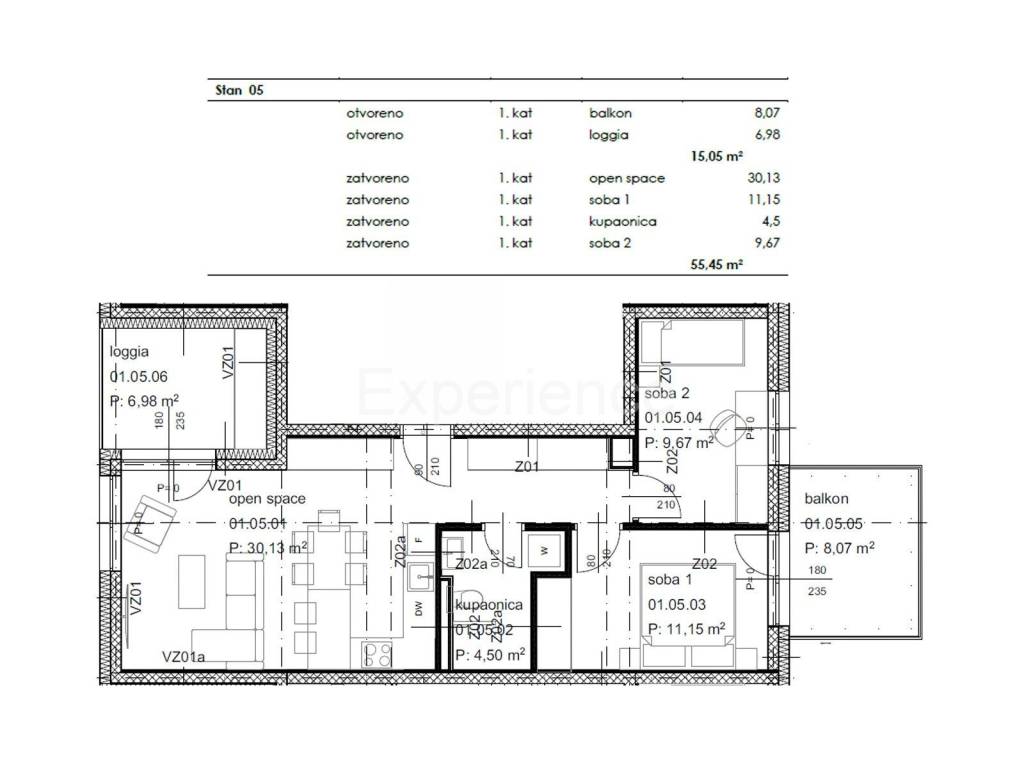
In Tar - approx. 2.500 m from the sea, in a very quiet environment an apartment with a surface of 62,70 m is for sale. The apartment is situated on the first floor of a residential building. Contains: an open and bright space in which are situated a living room, kitchen and dining room with access to the balcony (6.98 m), two bedrooms one of which has access to the balcony (8.07 m) and a bathroom.

On the ground floor of the building there is a common bicycle storage room. The building is equipped with an elevator.

The apartment also has two parking spaces in front of the building.

Technical features:
- 18 cm thermal insulation wool,
- reinforced - concrete construction resistant to earthquakes,
- elevator,
- electric underfloor heating in the entire apartment and a thermostat in each room,
- air conditioners in all rooms,
- PVC joinery with triple glazing,
- mosquito nets,
- electric shutters,
- fireproof entrance door,
- intercom with video call,
- high-quality Italian ceramics,
- Villeroy and Boch sanitary ware.

The special advantage of this apartment is the LOCATION, within walking distance there is a school, kindergarten, pharmacy, several restaurants, grocery store, supermarket and coffee bar.

The planned completion of construction is by June 2026.

In addition, there is no duty of tax on real estate ownership transfer, in the amount of 3% of the contracted purchase price.
Если вы хотите узнать больше, вы можете поговорить с Patricija Simonetti.
Характеристики
Типология
Квартира
Договор
Продажа
Этаж
1 этаж
Лифт
Да
Площадь
63 m²
Помещения
5
Спальни
2
Ванные
1
Отопление
Централизованное
Другие характеристики
  • Железная дверь
Информация о ценах
Цена
€ 200 640
Цена за м²
3 185 €/m²
Энергоэффективность
  • Год постройки

    2026
  • Состояние

    Новое / На стадии строительства
  • Отопление

    Централизованное
  • Энергетическая сертификация

    Не классифицирована
Откройте для себя каждый уголок объекта недвижимости
+8
Доп. опции

Свяжитесь с рекламодателем

Или