Участок под застройку Продажа

€ 75 000
564 m²

Пометка

Объявление обновлено 14.03.2026
Описание

ID: 2459-1

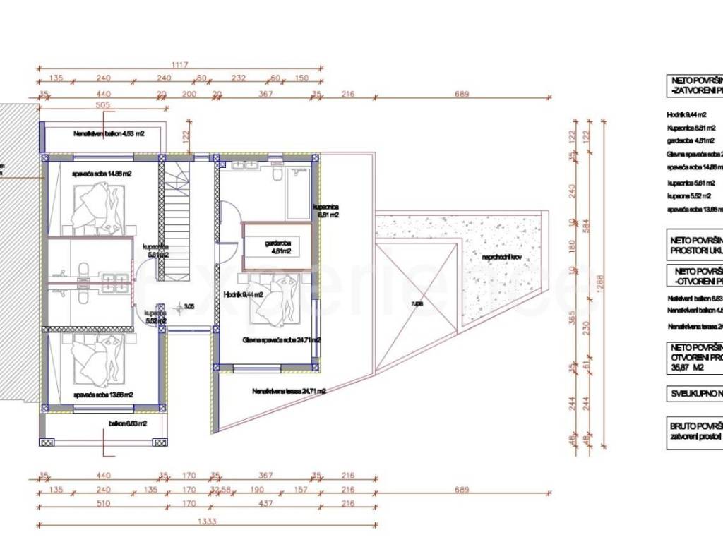
U okolici Višnjana, u iznimno mirnom ambijentu na prodaji je građevinsko zemljište, površine 564 m. Zemljište se nalazi u tipičnom istarskom selu sa svega nekoliko kuća, na rubu naselja. Teren je ravan, uzvišen, te pruža otvoreni panoramski pogled na okolna brda.

Ishodovana je građevinska dozvola i plaćene su komunalije za izgradnju dvojne obiteljske kuće sa bazenom, ukupne neto površine 317 m. Plaćen je komunalni doprinos u iznosu od 7.500 .

Priključci za struju i vodu nalaze se uz parcelu.
Если вы хотите узнать больше, вы можете поговорить с Patricija Simonetti.
Характеристики
Договор
Продажа
Типология
Участок под застройку
Площадь
564 m²
Информация о ценах
Цена
€ 75 000
Цена за м²
133 €/m²
Откройте для себя каждый уголок объекта недвижимости
+6
Доп. опции

Свяжитесь с рекламодателем

Или