map icon

Четырехкомнатная квартира четвертый этаж, Seget

Seget
€ 327 000
4
62 m²
2
4

Пометка

Объявление обновлено 05.12.2025
Описание

This description has been translated automatically and may not be accurate

ID: 1445-1

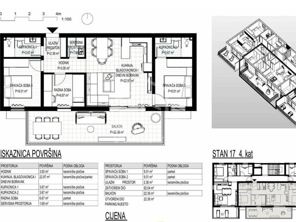
We are offering for sale a two-bedroom penthouse apartment on the fourth floor of a residential building under construction in Seget Donji.
The apartment consists of a hallway, two bedrooms, two bathrooms with toilets, a study, a living room with a kitchen and dining room, and a spacious terrace.
The interior area is 62.04 m2, and the terrace is 22.36 m2.
It comes with one garage parking space.
For more information, contact the agent.
Характеристики
Типология
Квартира
Договор
Продажа
Этаж
4 этаж
Площадь
62 m²
Помещения
4
Спальни
2
Ванные
2
Информация о ценах
Цена
€ 327 000
Цена за м²
5 274 €/m²
Энергоэффективность
  • Энергетическая сертификация

    Не классифицирована
Доп. опции

Свяжитесь с рекламодателем

Или