map icon

Четырехкомнатная квартира нулевой этаж, Trogir

Trogir
€ 241 426
4
64 m²
1
T

Пометка

Объявление обновлено 19.03.2026
Описание

This description has been translated automatically and may not be accurate

ID: 1409-1

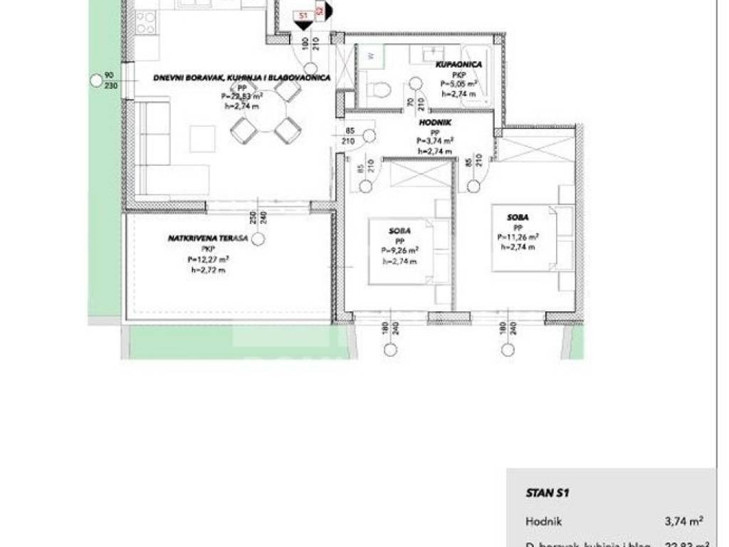
We are offering for sale a two-bedroom apartment on the ground floor of a residential building under construction in the city of Trogir, Šaldun district on the island of Čiovo.
The apartment consists of a hallway, two bedrooms, a bathroom with toilet, a living room with kitchen and dining room, and a covered terrace.
The interior area of the apartment is 52.14 m2, and the covered terrace is 12.27 m2.
It has one garage parking space.
The apartment is sold on a "turnkey" basis, which includes the installation of entrance and interior doors, high-quality carpentry, air conditioning, sanitary ware, flooring, etc.
For more information, contact the agent.
Характеристики
Типология
Квартира
Договор
Продажа
Этаж
Нулевой этаж
Площадь
64 m²
Помещения
4
Спальни
2
Ванные
1
Информация о ценах
Цена
€ 241 426
Цена за м²
3 772 €/m²
Энергоэффективность
  • Энергетическая сертификация

    Не классифицирована
Доп. опции

Свяжитесь с рекламодателем

Или