map icon

Квартира нулевой этаж, Okrug

Okrug
€ 308 473
5+
117 m²
1
T

Пометка

Объявление обновлено 05.12.2025
Описание

This description has been translated automatically and may not be accurate

ID: 1377-1

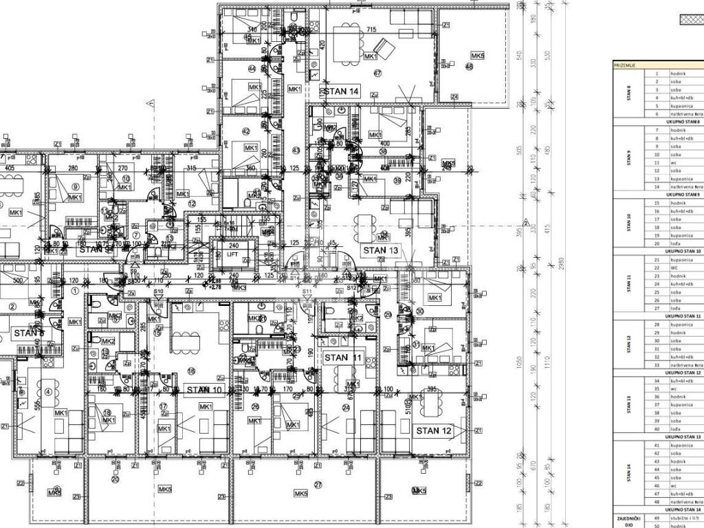
We are offering for sale a three-bedroom apartment under construction in Okrug Gornji. The apartment is marked "STAN 14".
The apartment consists of a hallway, three bedrooms, a living room with kitchen and dining room, bathroom, additional toilet and a covered terrace. You can see the detailed square footage in the floor plan.
The building is under construction, and completion is scheduled for summer 2026.
Price of an outdoor parking space: 5000 EUR.
The construction is taking place in a quiet and safe location ideal for permanent residence, year-round or tourist rental.
For more information, contact the agent.
Характеристики
Типология
Квартира
Договор
Продажа
Этаж
Нулевой этаж
Площадь
117 m²
Помещения
5+
Спальни
3
Ванные
1
Информация о ценах
Цена
€ 308 473
Цена за м²
2 637 €/m²
Энергоэффективность
  • Энергетическая сертификация

    Не классифицирована
Откройте для себя каждый уголок объекта недвижимости
+4
Доп. опции

Свяжитесь с рекламодателем

Или