map icon

Четырехкомнатная квартира первый этаж, Okrug

Okrug
€ 296 870
4
92 m²
1
1

Пометка

Объявление обновлено 05.12.2025
Описание

This description has been translated automatically and may not be accurate

ID: 1381-1

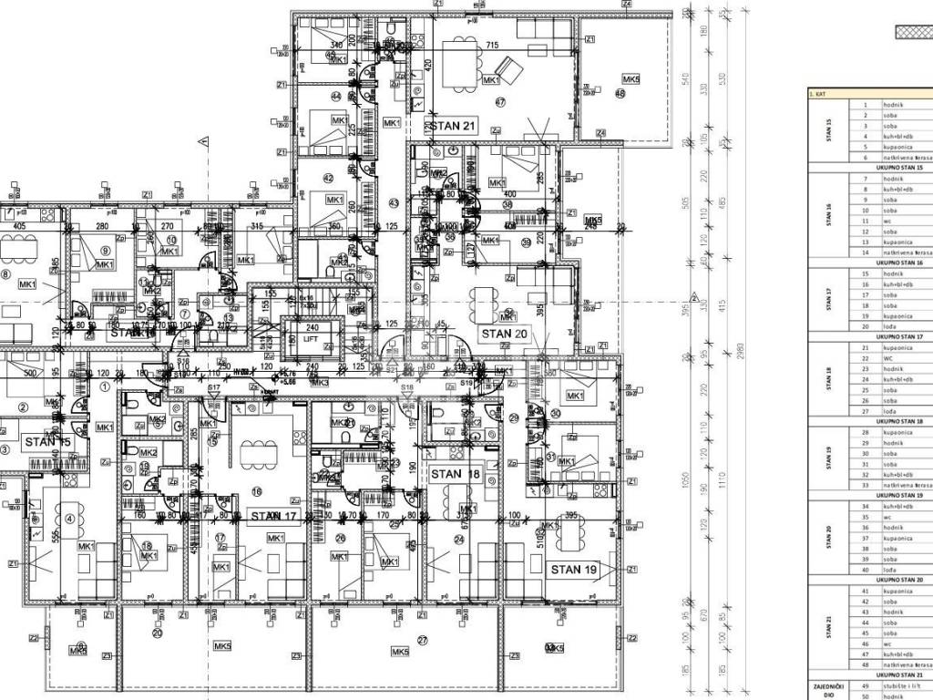
We are offering for sale a two-bedroom apartment under construction in Okrug Gornji. The apartment is marked "STAN 17".
The apartment consists of a hallway, two bedrooms, a living room with kitchen and dining room, a bathroom and a loggia. You can see the detailed square footage in the floor plan.
The building is under construction, and completion is scheduled for summer 2026.
Price of an outdoor parking space: 5000 EUR.
The construction is taking place in a quiet and safe location ideal for permanent residence, year-round or tourist rental.
For more information, contact the agent.
Характеристики
Типология
Квартира
Договор
Продажа
Этаж
1 этаж
Площадь
92 m²
Помещения
4
Спальни
2
Ванные
1
Информация о ценах
Цена
€ 296 870
Цена за м²
3 227 €/m²
Энергоэффективность
  • Энергетическая сертификация

    Не классифицирована
Откройте для себя каждый уголок объекта недвижимости
+4
Доп. опции

Свяжитесь с рекламодателем

Или