map icon

Четырехкомнатная квартира нулевой этаж, Seget

Seget
€ 380 000
4
90 m²
1
T

Пометка

Объявление обновлено 05.12.2025
Описание

This description has been translated automatically and may not be accurate

ID: 1303-1

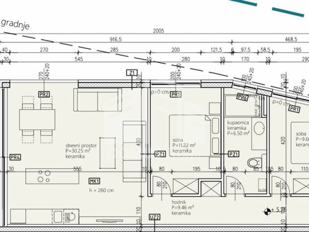
We are offering for sale a two-bedroom apartment on the first floor of a luxury residential building under construction in Seget Vranjica.
The apartment consists of a hallway, two bedrooms, a bathroom with toilet, a living room with kitchen and dining room, and a comfortable loggia.
The interior area of the apartment is 70 m2, and the loggia is 21 m2.
It also has a garden with BBQ.
It is necessary to purchase a garage parking space at a price of 20,000 EUR.
The start of construction is scheduled for spring 2025, and completion and move-in by the end of 2026.
The sale is carried out on a "turnkey" basis.
The property is located just a few minutes walk from the sea and the beach on the peninsula in Seget Vranjica.
For more information, contact the agent.
Характеристики
Типология
Квартира
Договор
Продажа
Этаж
Нулевой этаж
Площадь
90 m²
Помещения
4
Спальни
2
Ванные
1
Информация о ценах
Цена
€ 380 000
Цена за м²
4 222 €/m²
Энергоэффективность
  • Энергетическая сертификация

    Не классифицирована
Откройте для себя каждый уголок объекта недвижимости
+17
Доп. опции

Свяжитесь с рекламодателем

Или