map icon

Квартира нулевой этаж, Okrug

Okrug
€ 1 200 000
5+
112 m²
3
T

Пометка

Объявление обновлено 05.12.2025
Описание

This description has been translated automatically and may not be accurate

ID: 1258-1

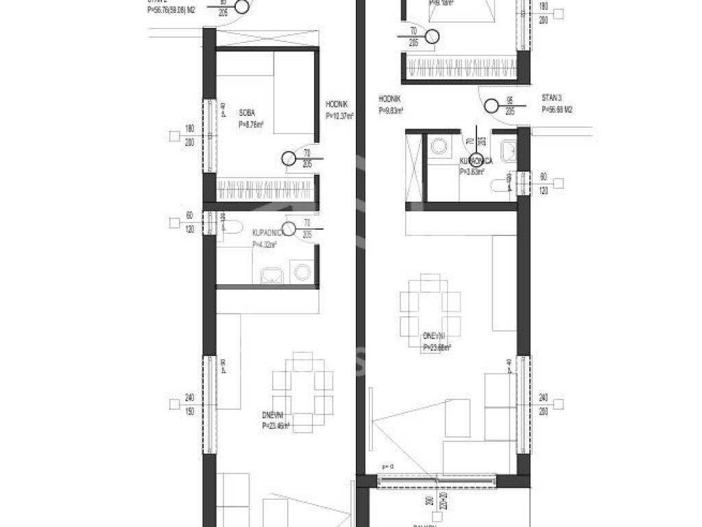
We offer for sale a three-room apartment on the ground floor of a residential building under construction in Okrug Gornji, in the first row from the sea.

The apartment consists of a hallway, three bedrooms, three bathrooms with toilet, additional toilet, laundry room/pantry, living room with kitchen and dining room, and a comfortable balcony with a beautiful view of the sea and islands.

The interior area of the apartment is 111.74 m2, and it also has an area of 300 m2, which includes a garden, a private pool, and a parking lot.

Construction of the building will begin in September 2025, and completion and occupancy are scheduled for December 2026.

The sale is made on a "turnkey" basis, which includes the installation of entrance blinds and interior doors, air conditioning, underfloor heating, high-quality aluminum carpentry, sanitary ware, etc.

An excellent opportunity for an investment that, despite all the changes in the market, holds its price due to its exceptional location.

For more information, contact an agent.
Характеристики
Типология
Квартира
Договор
Продажа
Этаж
Нулевой этаж
Площадь
112 m²
Помещения
5+
Спальни
3
Ванные
3
Информация о ценах
Цена
€ 1 200 000
Цена за м²
10 714 €/m²
Энергоэффективность
  • Год постройки

    2025
  • Энергетическая сертификация

    Не классифицирована
Откройте для себя каждый уголок объекта недвижимости
+7
Доп. опции

Свяжитесь с рекламодателем

Или