map icon

Четырехкомнатная квартира первый этаж, Okrug

Okrug
€ 510 000
4
69 m²
1
1

Пометка

Объявление обновлено 05.12.2025
Описание

This description has been translated automatically and may not be accurate

ID: 1255-1

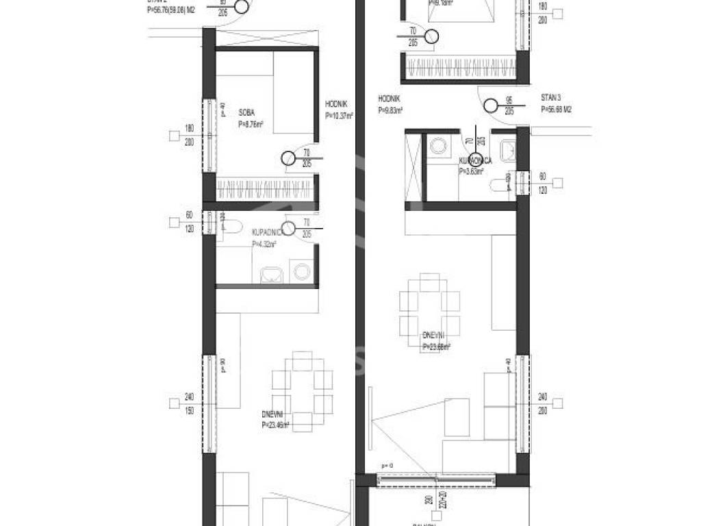
We offer for sale a two-room apartment on the first floor of a residential building under construction in Okrug Gornji, in the first row from the sea.

The apartment consists of a hallway, two bedrooms, bathroom with toilet, living room with kitchen and dining room, and a comfortable balcony with a beautiful view of the sea and islands.

The interior area of the apartment is 59.09 m2, and the balcony is 9.80 m2.

It has one outdoor parking space.

Construction of the building will begin in September 2025, and completion and occupancy are scheduled for December 2026.

The sale is made on a "turnkey" basis, which includes the installation of entrance blinds and interior doors, air conditioning, underfloor heating, high-quality aluminum carpentry, sanitary ware, etc.

An excellent opportunity for an investment that, despite all the changes in the market, holds its price due to its exceptional location.

For more information, contact an agent.
Характеристики
Типология
Квартира
Договор
Продажа
Этаж
1 этаж
Площадь
69 m²
Помещения
4
Спальни
2
Ванные
1
Информация о ценах
Цена
€ 510 000
Цена за м²
7 391 €/m²
Энергоэффективность
  • Год постройки

    2025
  • Энергетическая сертификация

    Не классифицирована
Откройте для себя каждый уголок объекта недвижимости
+7
Доп. опции

Свяжитесь с рекламодателем

Или