map icon

Трехкомнатная квартира новое, второй этаж, Okrug

Okrug
€ 680 000
3
135 m²
3
2
Да
Терраса

Пометка

Объявление обновлено 28.01.2026
Описание

This description has been translated automatically and may not be accurate

ID: 3169-1

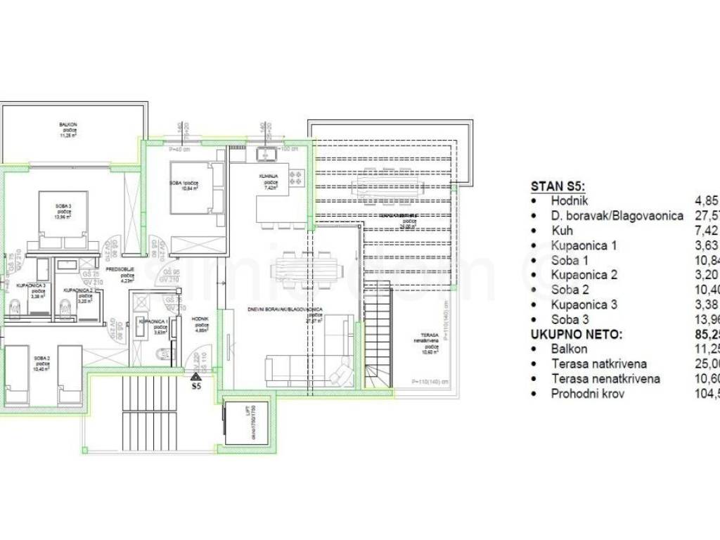
A great penthouse apartment located in a smaller building just 60m from the pebble beach on Ciovo is for sale. The apartment is placed on the second floor of a building with an elevator. The apartment has a total internal area of 85 m2 and two terraces at the apartment level, a total floor area of 46.85 m2, and a roof terrace of 104.55 m2. With the coefficients for the terraces included, the apartment has a net usable area of 135 m2. A great additional advantage is that the apartment has two garage and two outdoor parking spaces, all included in the price. The apartment consists of a hallway, three bedrooms, three bathrooms and a spacious kitchen with a dining room and a living area that has access to one of three terraces from which there is a beautiful view of the sea and the entire Okrug Gornji. The building will be built and equipped to high standards; exterior carpentry with mosquito nets, burglar-proof and fire-resistant entrance doors, roller shutters with electric lifts, underfloor heating, modern bathroom fixtures. Expected move-in is the end of 2026. This top location, just steps from the beach and all amenities, with a phenomenal view, guarantees a top-notch vacation, which will only increase the value of this property in the future.

Viewing this property is possible only with the signing of our standard agency agreement, which is the basis for further actions related to the sale of real estate, all in accordance with the Law on Data Protection and the Real Estate Brokerage Act.
Характеристики
Типология
Квартира
Договор
Продажа
Этаж
2 этаж
Лифт
Да
Площадь
135 m²
Помещения
3
Ванные
3
Терраса
Да
Другие характеристики
  • Железная дверь
Информация о ценах
Цена
€ 680 000
Цена за м²
5 037 €/m²
Энергоэффективность
  • Состояние

    Новое / На стадии строительства
  • Энергетическая сертификация

    Не классифицирована
Откройте для себя каждый уголок объекта недвижимости
+5
Доп. опции

Свяжитесь с рекламодателем

Или