map icon

Трехкомнатная квартира новое, первый этаж, Vodice

Vodice
€ 450 000
3
139 m²
2
1
Да
Терраса

Пометка

Объявление обновлено 28.01.2026
Описание

This description has been translated automatically and may not be accurate

ID: 3013-1

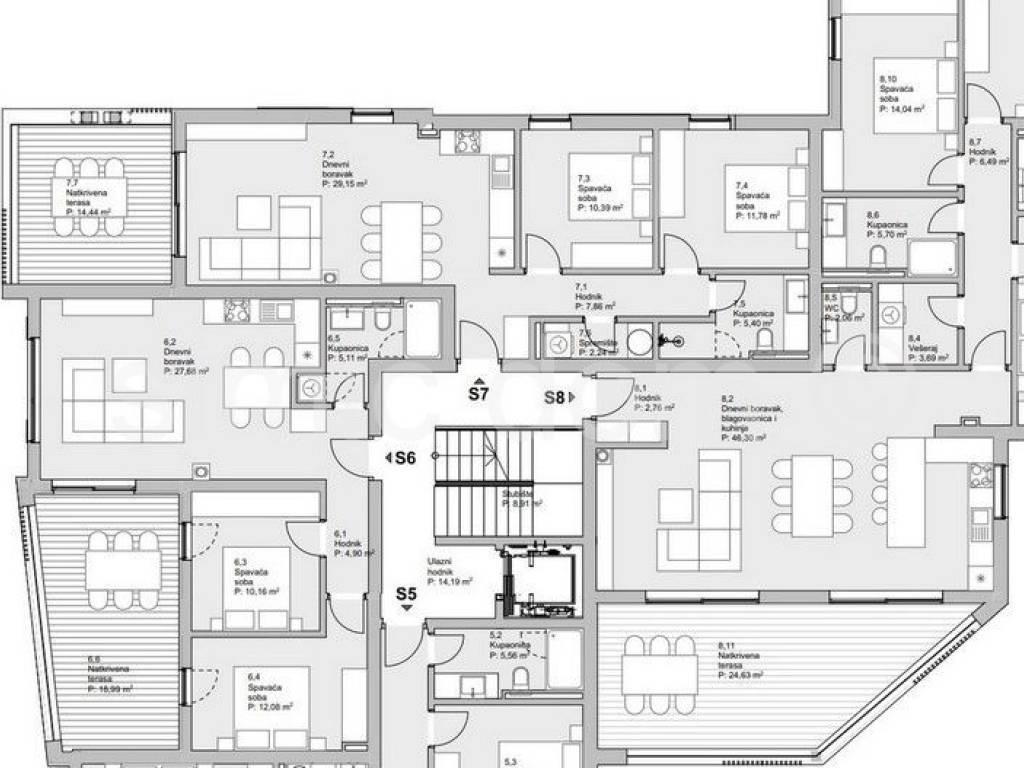
For sale is a great new apartment, at just 380m from a beautiful pebble beach in Vodice. Apartment marked S8 is placed on the first floor of a smaller building and has a southeast orientation. The apartment has a total floor area of 138.83m2, of which 114m2 is internal space. The apartment consists of three bedrooms, two bathrooms, a toilet, a laundry room, a hallway and a spacious kitchen with a dining room and an open-concept living room that leads to a large terrace. The apartment also includes a garage parking space of 18m2 and a storage room of 8m2, all included in the price. The project includes equipment according to the high standards of the investor: air conditioners in the bedrooms and the living room, Styrofoam facade, modern bathroom sanitary ware, PVC carpentry, blinds with electric lifters, mosquito nets, burglar-proof and fire-proof entrance doors, underfloor heating, Italian ceramic floor coverings, TV/internet connection in bedrooms and living room. Thanks to its location close to all amenities, this property is an excellent investment both for rent and as your own vacation property.

Viewing this property is possible only with the signing of our standard agency agreement, which is the basis for further actions related to the sale of real estate, all in accordance with the Law on Data Protection and the Real Estate Brokerage Act.
Характеристики
Типология
Квартира
Договор
Продажа
Этаж
1 этаж
Лифт
Да
Площадь
139 m²
Помещения
3
Ванные
2
Терраса
Да
Кондиционер
Централизованное, холод/тепло
Другие характеристики
  • Железная дверь
Информация о ценах
Цена
€ 450 000
Цена за м²
3 237 €/m²
Энергоэффективность
  • Состояние

    Новое / На стадии строительства
  • Кондиционер

    Централизованное, холод/тепло
  • Энергетическая сертификация

    Не классифицирована
Откройте для себя каждый уголок объекта недвижимости
+3
Доп. опции

Свяжитесь с рекламодателем

Или