map icon

Двухкомнатная квартира новое, нулевой этаж, Okrug

Okrug
€ 185 000
2
69 m²
2
T

Пометка

Объявление обновлено 23.12.2025
Описание

This description has been translated automatically and may not be accurate

ID: 4288-1

On the island of Čiovo in Okrug Gornji, we are mediating the sale of 8 apartments in a newly built building. The building is located in a quiet environment, has a southern orientation and has a total of 4 floors.
There are two apartments on each floor, one with three bedrooms and one with two bedrooms.
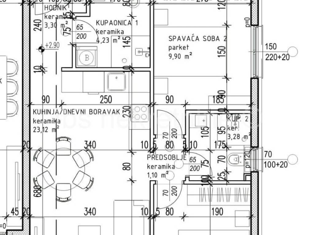
Two-room apartments consist of two bedrooms, an entrance hall, two bathrooms, a kitchen, a dining room, a living room and a terrace.
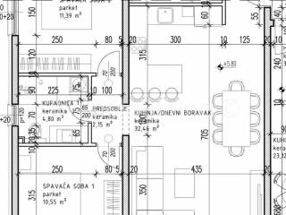
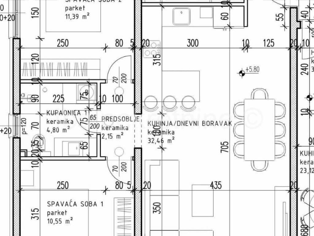
Three-room apartments consist of three bedrooms. entrance hall, two bathrooms, pantry, kitchen, dining room, living room and terrace.
The apartments on the top floor also have a roof terrace.
All apartments will be equipped with high-quality ceramics and sanitary ware, burglar-proof doors, high-quality windows, sliding shutters with electronically operated blinds, all rooms will be air-conditioned, bathrooms equipped with underfloor heating, and residents will have access to a swimming pool and an elevator.
Each apartment has its own parking space, which is included in the price.


-BASEMENT-
S1- SOLD
S2- SOLD

-GROUND FLOOR- (in nature elevated as the 1st floor)
S3- SOLD
S4 - 54.83 m + balcony 14.63 m - 185,000

-FIRST FLOOR-
S5- SOLD

S6 - 54.83 m + balcony 14.63 m - 195,000

-SECOND FLOOR-

S7 - 83.30 m + balcony 24.20 m + roof terrace 109.60 m - 460,000

S8 - 54.83 m + balcony 14.63 m + roof terrace 70.40 m - 325,000

These properties are ideal for tourism as well as for a year-round stay, because the island of Čiovo has everything you need for an ideal life or vacation, as it is a small but extremely charming island, connected by a bridge to the beautiful UNESCO city of Trogir.
At a distance of 6 km is Split Airport, while the city of Split is only 25 km away, which makes Čiovo and Trogir an ideal destination for your vacation or as a choice for year-round living.

Dear clients, viewing the property is only possible with a signed mediation agreement, which is the basis for further cooperation, as well as for the payment of a commission, all in accordance with the Act on mediation in real estate transactions.
Характеристики
Типология
Квартира
Договор
Продажа
Этаж
Нулевой этаж
Площадь
69 m²
Помещения
2
Ванные
2
Информация о ценах
Цена
€ 185 000
Цена за м²
2 681 €/m²
Энергоэффективность
  • Состояние

    Новое / На стадии строительства
  • Энергетическая сертификация

    Не классифицирована
Откройте для себя каждый уголок объекта недвижимости
+5
Доп. опции

Свяжитесь с рекламодателем

Или