Квартира хорошее состояние, первый этаж, Šestinski dol, Загреб

€ 550 000
5+
105 m²
2
1
Да
Терраса

Пометка

Объявление обновлено 03.05.2026
Описание

This description has been translated automatically and may not be accurate

ID: 831-1

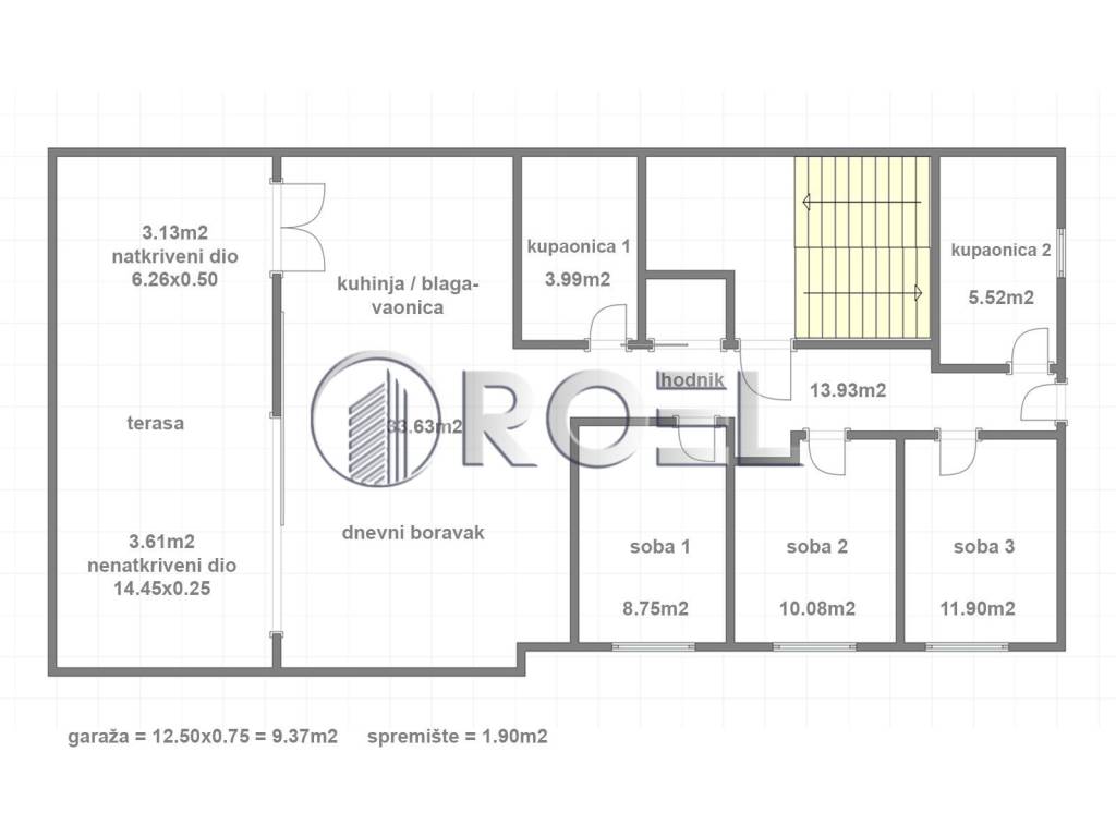
Luxury 4-Bedroom Apartment for Sale New Development in Sveti Duh, Zagreb + Garden, Garage, Storage & Terrace!
A modern apartment in a newly constructed building (2025) is for sale, located in an excellent area Sveti Duh, Zagreb (Črnomerec district). The apartment is situated on the 1st floor of a building with an elevator and has a total living area of 87.72 m, with additional features including:Spacious terrace (21.63 m) Private garden (36.90 m) which can be converted into outdoor parking spaces Storage room (1.67 m) Garage parking space (12.50 m)
The apartment consists of an entrance hallway, open-plan living room with kitchen and dining area, 3 bedrooms, and 2 bathrooms. The layout is excellent the apartment has access from both the north and south sides of the building, allowing for maximum natural light and ventilation.
Equipped with underfloor heating, air conditioning, and a heat pump. Energy efficiency class: A+.
The building features an elevator, video intercom, electric blinds, security doors, alarm system, and is accessible for people with disabilities. It is connected to water and sewage systems and has both a construction and occupancy permit.
The location is ideal for family life, with schools, kindergartens, shops, healthcare facilities, and public transportnearby all in a peaceful, green environment near a forest park.
Clean ownership (1/1), no encumbrances
Available for immediate move-in
Agent: Sarah Lipert+385 99 2135 027
Если вы хотите узнать больше, вы можете поговорить с Sarah Lipert.
Характеристики
Типология
Квартира
Договор
Продажа
Этаж
1 этаж
Лифт
Да
Площадь
105 m²
Помещения
5+
Спальни
3
Ванные
2
Меблировано
Нет
Терраса
Да
Кондиционер
Централизованное, холод/тепло
Другие характеристики
  • Сигнализация
  • Видеодомофон
  • Железная дверь
Информация о ценах
Цена
€ 550 000
Цена за м²
5 238 €/m²
Энергоэффективность
  • Год постройки

    2025
  • Состояние

    Хорошее / Жилое
  • Кондиционер

    Централизованное, холод/тепло
  • Энергетическая сертификация

    Не классифицирована
Откройте для себя каждый уголок объекта недвижимости
+22
Доп. опции

Свяжитесь с рекламодателем

Или