map icon

Односемейная вилла 371 m², Sveti Filip i Jakov

Sveti Filip i Jakov
€ 1 855 000
5+
371 m²
Терраса

Пометка

Объявление обновлено 05.12.2025
Описание

This description has been translated automatically and may not be accurate

ID: 15098-1

www.biliskov.comID 15098
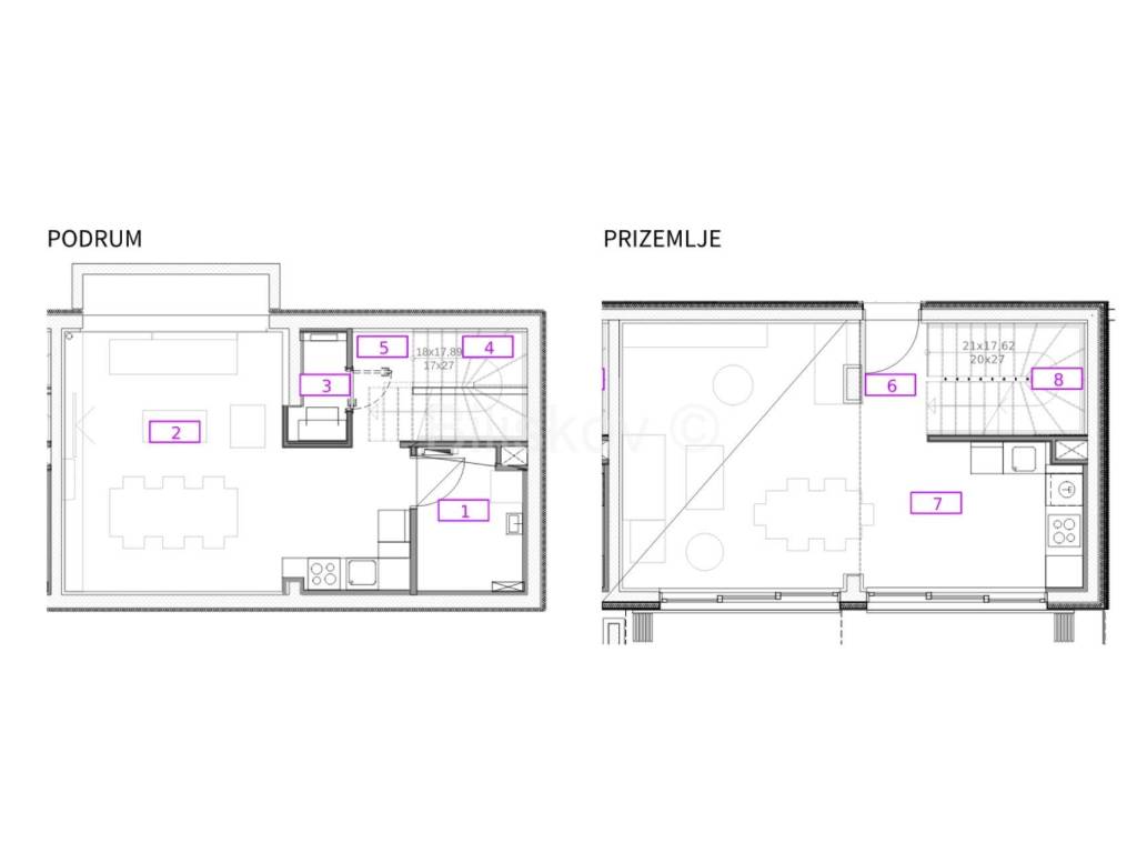
Св. Филипп и Яков, Турань Прекрасная шести-комнатная современная вилла на 4 этажах в новом здании общей площадью 372 м. Находится в закрытом роскошном комплексе всего в 50 метрах от моря. Вилла состоит из:

Подвал (41,24 м): прихожая, лестница, туалет, техническое помещение и открытое пространство, где расположены кухня, столовая и гостиная.
Первый этаж (42,22 м): входное пространство, лестница и открытое пространство, где расположены кухня, столовая и гостиная.
Второй этаж (44,41 м): коридор, лестница, две спальни и ванная комната.
Третий этаж (36,28 м): коридор, ванная комната и две спальни.

Кроме того, вилле принадлежат две террасы на первом этаже (в общей сложности 33,77 м) и терраса на верхнем этаже (21,73 м), частный сад (46,67 м) с бассейном (8,39 м), передний двор (66,83 м), крытое парковочное место (15,12 м) и наружное парковочное место (15,74 м). В строительстве использованы только самые современные и высококачественные материалы, с особым вниманием к следующим факторам:

Первоклассная тепло- и гидроизоляция
Высококачественные алюминиевые окна, двери и стеклянные стены; Cortizo
Алюминиевые жалюзи Harmo; электрическое управление
Вентилируемый фасад
Система отопления теплый пол и тепловой насос
Последнее поколение модульной системы охлаждения потолка
Решение Smart Home
Огражденный и контролируемый доступ в комплекс с видеонаблюдением и системой домофона
Индивидуальное видеонаблюдение жилых единиц и садов

Этот роскошный комплекс находится в исключительном месте в самом сердце Далмации. В непосредственной близости от всех важных объектов (школы, детские сады, магазины, аптеки, больницы и т. д.). Местоположение предлагает отличные автомобильные связи: 15 минут езды от аэропорта Задар и 20 минут от центра города Задар.
EC: В процессе Ориентация: Юг, Запад, Восток Цена продажи: 1 885 000 Комиссия агенту для покупателя: 2% + НДС от достигнутой цены продажи
Если вы хотите узнать больше, вы можете поговорить с Emilija Živičnjak.
Характеристики
Типология
Односемейная вилла
Договор
Продажа
Этаж
1 этаж
Площадь
371 m²
Помещения
5+
Терраса
Да
Кондиционер
Централизованное, холод/тепло
Другие характеристики
  • Сигнализация
  • Бассейн
  • Железная дверь
Информация о ценах
Цена
€ 1 855 000
Цена за м²
5 000 €/m²
Энергоэффективность
  • Год постройки

    2024
  • Кондиционер

    Централизованное, холод/тепло
  • Энергетическая сертификация

    Не классифицирована
Откройте для себя каждый уголок объекта недвижимости
+10
Доп. опции

Свяжитесь с рекламодателем

Или