map icon

Таунхаус 5 помещений, подлежит ремонту, Kaštela

Kaštela
€ 103 000
5
81 m²

Пометка

Объявление обновлено 05.12.2025
Описание

ID: 14739-1

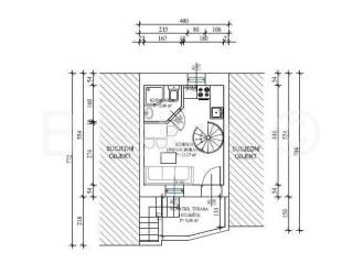
Kaštela, Kaštel Lukšić, kuća u nizu, u blizini centra mjesta, površine cca. 70 m2.
Nekretnina se sastoji od:
SUTEREN kuhinja s blagovaonicom i dnevnim boravkom, kupaonica, ostava.PRIZEMLJE -kuhinja s blagovaonicom i dnevnim boravkom, natkrivena terasaPOTKROVLJE 2 spavaće sobe
Potrebna kompletna renovacija.
Odlična lokacija u blizini svih sadržaja (škola, crkva, trgovine, pošta, javni gradski prijevoz)
Udaljenost do mora i plaže: cca. 200 m
Lokacija nudi savršen spoj tradicionalnog dalmatinskog života i modernih sadržaja, za svakodnevni život ili za turističko iznajmljivanje.
Napomena: Cijena je fiksna.
www.biliskov.com- ID: 14739
Если вы хотите узнать больше, вы можете поговорить с Sandra Pera.
Характеристики
Типология
Таунхаус
Договор
Продажа
Этаж
Нулевой этаж
Площадь
81 m²
Помещения
5
Спальни
2
Информация о ценах
Цена
€ 103 000
Цена за м²
1 272 €/m²
Энергоэффективность
  • Состояние

    Подлежит ремонту
  • Энергетическая сертификация

    Не классифицирована
Откройте для себя каждый уголок объекта недвижимости
+2
Доп. опции

Свяжитесь с рекламодателем

Или