map icon

Отдельный дом на одну семью 444 m², Nova Ves - Gupčeva zvijezda, Загреб

ЗагребNova Ves - Gupčeva zvijezda
€ 8 000/месяц
5+
444 m²
3+
Да
Меблировано

Пометка

Объявление обновлено 21.04.2026
Описание

This description has been translated automatically and may not be accurate

ID: 14670-1

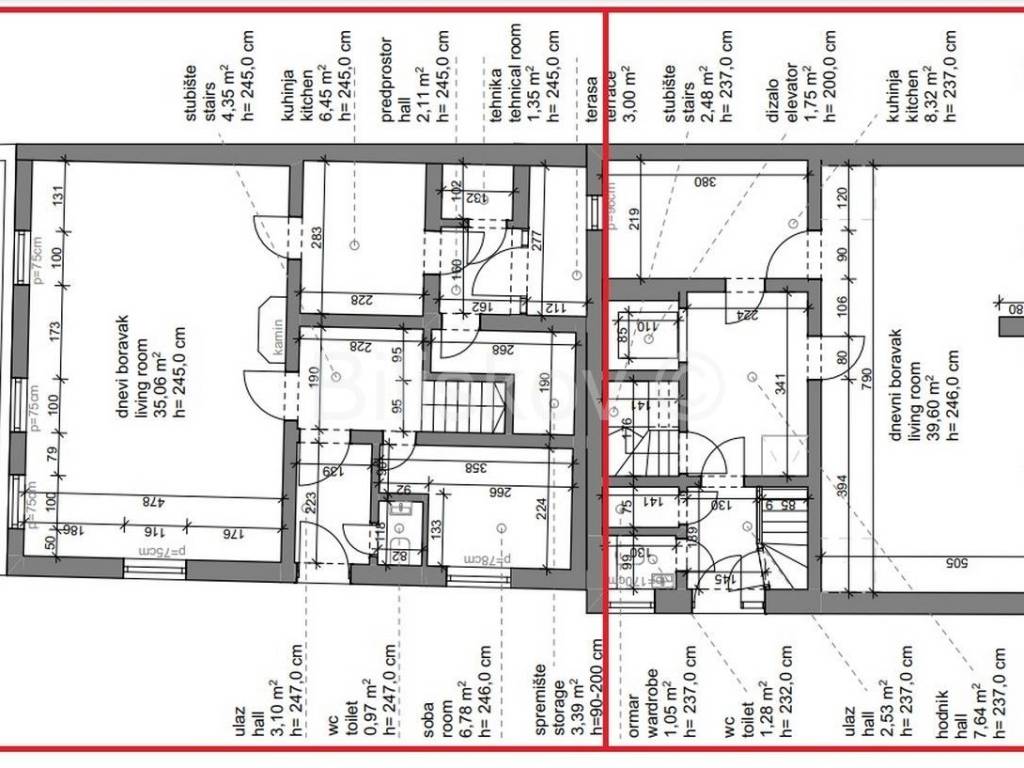
www.biliskov.com ID 14670Горний Град, ЮрьевскаяПолностью отремонтированный семейный дом площадью 444 м на участке площадью 967 м. Дом расположен в очень красивом районе, в непосредственной близости от центра города и в то же время окружён зеленью.У дома два отдельных входа, и он может функционировать как две отдельные единицы. Первый этаж связан между собой.Первая часть дома включает в себя первый этаж и второй этаж, состоящие из входного коридора, туалета, гостиной с камином, кухни и кабинета; на втором этаже находятся три спальни, каждая с собственной ванной комнатой.Вторая часть дома состоит из подвала, в котором находятся котельная, ванная комната, техническое помещение для оборудования и лифт, соединяющий все четыре этажа второго дома.На первом этаже находится гостиная, туалет, прихожая и крытая терраса; на втором этаже находятся три спальни, две ванные комнаты и гардеробы; на последнем этаже располагается большая гостиная, ванная комната и крытая терраса с прекрасным видом на Тушканец и Дубравкин путь.Дом был полностью отремонтирован в 2012 году.Окна: алюминийОтопление: этажное газовоеЦена:8.000 аренда включает все расходыАгентский сбор: одна месячная аренда + НДС
Если вы хотите узнать больше, вы можете поговорить с Jasna Biliškov Barun.
Характеристики
Типология
Отдельный дом на одну семью
Договор
Аренда
Этаж
Нулевой этаж
Лифт
Да
Площадь
444 m² | коммерческая 1 411 m²
Помещения
5+
Ванные
3+
Меблировано
Да
Кондиционер
Централизованное, холод/тепло
Другие характеристики
  • Камин
  • Сигнализация
  • Железная дверь
Деталь поверхности

Жилой фонд

Этаж
Нулевой этаж
Площадь
444,0 m²
Коэффициент
100%
Тип площади
Основная
Коммерческая площадь
444,0 m²

Участок

Этаж
Нулевой этаж
Площадь
967,0 m²
Коэффициент
100%
Тип площади
Дополнительная
Коммерческая площадь
967,0 m²
Информация о ценах
Цена
€ 8 000/месяц
Цена за м²
6 €/m²
Подробности о расходах
Залог
Неуказана
Энергоэффективность
  • Год постройки

    1975
  • Кондиционер

    Централизованное, холод/тепло
  • Энергетическая сертификация

    Не классифицирована
Откройте для себя каждый уголок объекта недвижимости
+16
Доп. опции

Свяжитесь с рекламодателем

Или