Квартира подлежит ремонту, третий этаж, August Šenoa, Загреб

€ 350 000
5
137 m²
2
3
Меблировано

Пометка

Объявление обновлено 01.05.2026
Описание

This description has been translated automatically and may not be accurate

ID: 14242-1

www.biliskov.com ID: 14242
Дони град, улица Петриньская
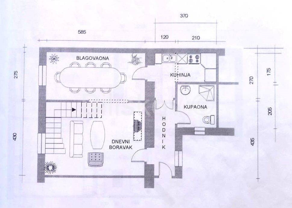
Пятикомнатная двухэтажная квартира площадью 136,75 м2 на 2 и 3 этаже жилого дома 1930 года постройки.
Здание имеет зеленую наклейку, планируется реконструкция фасада и лестницы.
Первый этаж квартиры (59,72 м2) состоит из прихожей, гостиной, кухни, столовой и ванной комнаты с туалетом.
На втором этаже (77,03 м2) прихожая, 4 спальни, ванная с туалетом и кладовая. Высота потолка на втором этаже 2,3 м.
В квартире также имеется чердачное помещение площадью 48 м2 (в настоящее время служащее галереей), на которое можно подняться по лестнице из коридора и которое не входит в полезную площадь квартиры.
Чрезвычайно привлекательное место в самом центре города, рядом со всеми удобствами, необходимыми для качественной и осмысленной жизни.
ЕС: в стадии строительства
Отопление: Центральное газовое отопление.
Ориентация: Восток-Запад
Цена: 350 000 евро.
Отель опрятный.
Агентское вознаграждение для покупателя составляет 2%+НДС от достигнутой цены покупки.
Если вы хотите узнать больше, вы можете поговорить с Martin Zefkić.
Характеристики
Типология
Квартира
Договор
Продажа
Этаж
3 этаж
Площадь
137 m²
Помещения
5
Ванные
2
Меблировано
Да
Отопление
Централизованное
Информация о ценах
Цена
€ 350 000
Цена за м²
2 555 €/m²
Энергоэффективность
  • Год постройки

    1930
  • Состояние

    Подлежит ремонту
  • Отопление

    Централизованное
  • Энергетическая сертификация

    Не классифицирована
Откройте для себя каждый уголок объекта недвижимости
+24
Доп. опции

Свяжитесь с рекламодателем

Или