Студия Povljana, Povljana

€ 175 000
1
53 m²
1

Пометка

Объявление обновлено 03.03.2026
Описание

ID: EUROVILLA-260880

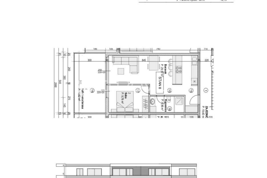
Predstavljamo vam projekt moderne novogradnje u novoizgrađenom dijelu Povljane na otoku Pagu. Zgrada se sastoji od ukupno 15 stambenih jedinica raspoređenih na 3 etaže. Udaljena je svega 350 metara od mora, lokalnih plaža i ostalih sadržaja potrebnih za kvalitetan i ispunjen život ili odmor.STAN S8 / 1. kat / 52,62 m²Stan S8 se nalazi na 1. katu zgrade te ima neto korisnu površinu od 52,62m². Sastoji se od otvorenog prostora dnevnog boravka, kuhinje i blagovaonice (29,57 m²), spavaće sobe (9,78 m²), potpuno opremljene kupaonice (4,96 m²) te natkrivene terase (16,62m2) s koje se pruža lijep pogled. Uz to, stanu pripada i jedno vanjsko parkirno mjesto.Planirano useljenje je 04/2027, zgrada je trenutno u početnim fazama radova.Zgrada će biti opremljena kvalitetnim materijalima, od čega valja izdvojiti:Multi-split klima uređaji u sobama i dnevnim boravcimaKvalitetna vanjska PVC Low-E stolarijaProtuprovalna i protupožarna vrataStaklene ograde na terasamaI još mnogo togaPovljana je šarmantno dalmatinsko mjesto na otoku Pagu, poznato po dugim pješčanim plažama i kristalno čistom moru. Idealan je izbor za nekretnine za odmor ili turistički najam — autentičan dalmatinski ugođaj, prostrane terase i blizina lokalnih restorana. Dobra prometna povezanost cestom te blizina važnijih otočnih i kopnenih odredišta čine Povljanu privlačnom investicijskom lokacijom na Pagu.Obratite nam se s povjerenjem za više informacija i dogovor razgledavanja.... Više na eurovilla.hr, ID: 260880
Если вы хотите узнать больше, вы можете поговорить с Filip Luštica .
Характеристики
Типология
Квартира
Договор
Продажа
Этаж
1
Площадь
53 m²
Помещения
1
Спальни
1
Деталь поверхности

Жилой фонд

Этаж
1
Площадь
53,0 m²
Коэффициент
100%
Тип площади
Основная
Коммерческая площадь
53,0 m²
Информация о ценах
Цена
€ 175 000
Цена за м²
3 302 €/m²
Энергоэффективность
  • Состояние

    Новое / На стадии строительства
  • Энергетическая сертификация

    Не подлежащий
Откройте для себя каждый уголок объекта недвижимости
+3
Доп. опции

Свяжитесь с рекламодателем

Или