Двухкомнатная квартира Varaždinska, Sesvete sjever, Загреб

Цена по запросу
2
62 m²
1
Балкон

Пометка

Объявление обновлено 03.03.2026
Описание

ID: EUROVILLA-434638

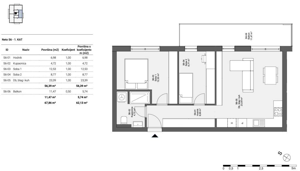
Zagreb, Sesvete, Popovec, prodaje se trosoban stan, zatvorene površine 56 m2. Dio je vrhunskog projekta s 19 stanova na četiri etaže u zgradi s liftom te garažnim mjestima u podzemoj etaži, na vrlo dobroj i prometno povezanoj lokaciji.Projekt Popovec odlikuje odlična projektiranost po pitanju tlocrta i iskoristivosti prostora uz iznimno funkcionalna spremišta na istim etažama gdje su stanovi. Gradnja je armiranobetonska s minimalno 15 cm termoizolacije, a od opreme se ističe podno grijanje, vrhunska stolarija, keramika i parketi prve klase, klimatizacija u svakoj sobi i sl. Stanovi imaju velike terase i otvore koji im donose dovoljno svjetla te ostavljaju dodatni dojam prostranosti.Stan S6 se nalazi na prvom katu te se sastoji od dnevnog prostora s kuhinjom i blagovaonicom, dvije spavaće sobe, kupaonice, ulaznog dijela, hodnika i natkrivenog balkona.Uz stan je obavezna kupnja spremišta (2,94 m2) po cijeni od 4.200 € te garažnog (18.000-21.000 €) ili vanjskog parkirnog mjesta (7.000 €).Lokacija je vrlo dobra, u brzorastućem naselju sa svega 5 minuta vožnje do središta Sesveta i manje od tri minute vožnje do autoceste. Također, budući produžetak Branimirove ulice će uvelike ubrzati dolazak u centralni dio Zagreba. Škola i vrtić su udaljeni manje od 300 metara što je dobar preduvjet za obiteljski život.Za ostala pitanja stojimo Vam na raspolaganju.... Više na eurovilla.hr, ID: 434638
Если вы хотите узнать больше, вы можете поговорить с Antoni Širić.
Характеристики
Типология
Квартира
Договор
Продажа
Этаж
1
Площадь
62 m²
Помещения
2
Спальни
2
Балкон
Да
Деталь поверхности

Жилой фонд

Этаж
1
Площадь
62,1 m²
Коэффициент
100%
Тип площади
Основная
Коммерческая площадь
62,1 m²
Информация о ценах
Цена
Цена по запросу
Энергоэффективность
  • Состояние

    Новое / На стадии строительства
  • Энергетическая сертификация

    Не подлежащий
Планировка
Откройте для себя каждый уголок объекта недвижимости
+3
Доп. опции

Свяжитесь с рекламодателем