Четырехкомнатная квартира новое, нулевой этаж, Petrčane - Kožino, Задар

€ 439 922
4
135 m²
2
T
Да
Балкон

Пометка

Объявление обновлено 03.05.2026
Описание

This description has been translated automatically and may not be accurate

ID: 300501008-3381

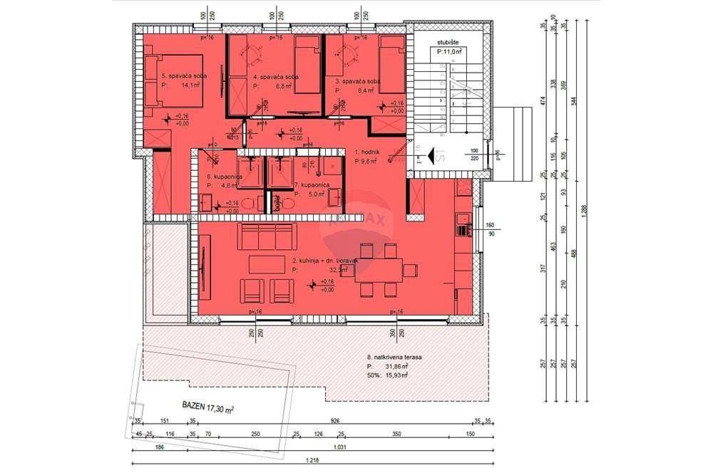
We offer new construction in the sought-after suburb of Zadar, only 70 meters from the beach. The apartment is located on the ground floor of a beautiful building of modern design, offering an extraordinary opportunity for a luxurious and comfortable life. This elegant building consists of three apartments, spread over three floors, and every detail has been carefully designed to meet the high standards of modern living.

Upon entering the apartment, you are greeted by a spacious and bright interior that exudes sophistication. The master bedroom, measuring 11.9 m, is equipped with its own wardrobe and a private bathroom of 4.6 m. This private oasis offers extraordinary comfort and intimacy. In addition to the master bedroom, the apartment offers two more comfortable bedrooms of 8.8 m and 8.4 m, ideal for family or guests, and an additional bathroom of 5.0 m, equipped with modern sanitary appliances.

The central part of the apartment is a spacious open space that unites the kitchen, dining room and living room, with a total area of 32.30 m. This space is designed for social gatherings and family moments, providing an ideal environment for cooking, dining and relaxing together. The living room opens onto a covered terrace of 31.86 m, which is perfect for enjoying the fresh air in any season.

A special feature of this apartment is the spacious garden of 105.71 m, which includes a swimming pool in front of the terrace of 17.28 m. This outdoor space offers outstanding opportunities for relaxation, recreation and socializing outdoors, providing a sense of privacy and luxury.

The apartment also includes a storage room in the basement of the building, with an area of 6.89 m, and two outdoor parking spaces, which ensures additional practicality and comfort.

The modern building in which the apartment is located was built using top quality materials from renowned manufacturers, which guarantees the safety and longevity of the property. The apartment is equipped with top-quality equipment, including a thermal facade, underfloor heating in all rooms, air conditioners in all rooms, and high-quality external carpentry with triple glazing, electrically operated blinds and mosquito nets. These features ensure maximum energy efficiency and living comfort.

The apartment on the ground floor is an ideal home for those looking for luxury, comfort and a modern lifestyle. Every room in the apartment is designed with attention to detail and functionality, making this apartment a real gem on the real estate market.

The apartment on the ground floor is located in the Kožino settlement, which is part of the City of Zadar in Zadar County. Kožino is known for its peaceful and picturesque surroundings, which makes it an ideal place for family life or for those looking for a quiet escape from the hustle and bustle of city life. Proximity to Zadar provides easy access to all necessary facilities, including shops, restaurants, schools and cultural attractions.

Documentation and ownership in order.
Viewing possible with prior agreement.

All other information on request.

ID CODE: 300501008-3381

RE/MAX Complete
Mob: 0981642222
Tel: 023/299-096
E-mail: complete1@remax.hr
https://www.remax.hr/Complete1
Характеристики
Типология
Квартира
Договор
Продажа
Этаж
Нулевой этаж
Лифт
Да
Площадь
135 m²
Помещения
4
Спальни
3
Ванные
2
Балкон
Да
Терраса
Нет
Кондиционер
Автономное, холод/тепло
Другие характеристики
  • Железная дверь
Информация о ценах
Цена
€ 439 922
Цена за м²
3 259 €/m²
Энергоэффективность

Потребление энергии

A

Откройте для себя каждый уголок объекта недвижимости
+23
Доп. опции

Свяжитесь с рекламодателем

Или