Участок под застройку Продажа

€ 310 000
966 m²

Пометка

Объявление обновлено 03.05.2026
Описание

ID: 15265

MOŠĆENIČKA DRAGA Atraktivno građevinsko zemljište s građevinskom dozvolom za raskošnu vilu!

Na prodaju je građevinsko zemljište površine 966 m2, smješteno na iznimno mirnoj i zelenilom okruženoj lokaciji, s pravomoćnom građevinskom dozvolom i kompletnom projektnom dokumentacijom za izgradnju luksuzne vile s prekrasnim pogledom na more.

Ova jedinstvena nekretnina omogućuje realizaciju elegantne vile koja nudi privatnost i komfor, a istovremeno se nalazi svega 10 minuta šetnje od centra Mošćeničke Drage i jedne od najljepših plaža na Opatijskoj rivijeri. Idealna kombinacija prirodnog okruženja, blizine mora i urbanih sadržaja pruža savršenu priliku za stvaranje ekskluzivne rezidencije ili luksuzne turističke investicije.

GLAVNE ZNAČAJKE
površina zemljišta 966 m2
pravomoćna građevinska dozvola za izgradnju vile
plaćeni komunalni i vodni doprinosi
prekrasan pogled na more i otok Cres
lokacija okružena zelenilom, svega 10 minuta pješice od centra i plaža

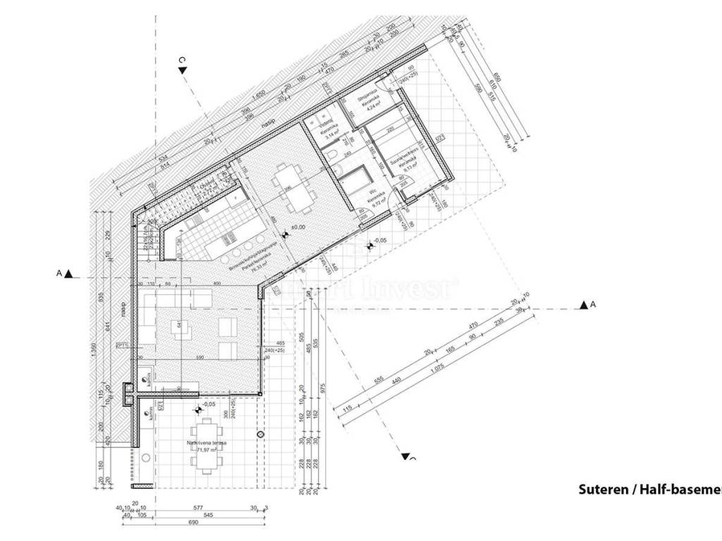
Projekt predviđa izgradnju moderne vile sveukupne površine 350 m2 s luksuznim sadržajima. U prizemlju je planiran prostrani dnevni boravak s kuhinjom i blagovaonicom, sauna, kupaonica, vešeraj i strojarnica, dok se na katu nalaze četiri spavaće sobe, svaka s vlastitom kupaonicom. Ispred vile je predviđena natkrivena terasa i bazen površine 50 m2, savršeni za opuštanje i uživanje u prekrasnom pogledu na Jadransko more.

Predviđeno je podno grijanje pogonjeno dizalicom topline na struju, a za hlađenje će biti zadužen autonomni multi split sistem klima uređaja. Vila je projektirana kako bi ispunila sve kriterije za kategorizaciju s 5 zvjezdica za turističko iznajmljivanje, što ovu nekretninu čini izvanrednom investicijskom prilikom.

Lokacija pruža savršenu ravnotežu između mira, prirode i blizine urbanih sadržaja, stvarajući jedinstvenu oazu za stanovanje ili odmor u luksuznom ambijentu.

*Postoji mogućnost kupnje susjedne parcele na kojoj je također dobivena dozvola za identičan objekt.

Za više informacija i razgled nazovite +385/99/320-0008

ID KOD AGENCIJE: 15265

Agencija Opatija
Ovlašteni posrednik
Mob: +385/99/320-0008
E-mail: office@smart-invest.hr
www.smart-invest.hr
Если вы хотите узнать больше, вы можете поговорить с Agencija Opatija.
Характеристики
Договор
Продажа
Типология
Участок под застройку
Площадь
966 m²
Информация о ценах
Цена
€ 310 000
Цена за м²
321 €/m²
Откройте для себя каждый уголок объекта недвижимости
+23
Доп. опции

Свяжитесь с рекламодателем

Или